Instapklare middenwoning met garage, dubbele parkeerplaats en vrij uitzicht in Dommelbergen
Op zoek naar een comfortabele en instapklare woning met verrassend veel ruimte, een garage én parkeren op eigen terrein? Deze royale middenwoning in de geliefde wijk Dommelbergen combineert een praktische indeling met moderne afwerking en een centrale ligging op loopafstand van winkels en scholen.

De woning beschikt over een circa 10 meter diepe tuin op het oosten met vrij uitzicht, vier slaapkamers, een balkon én een recent vernieuwde keuken en badkamer. Een ideale gezinswoning waar u zó in kunt.

Kenmerken:

- Energielabel B

- Instapklare middenwoning met garage en aparte berging

- Dubbele parkeerplaats op eigen terrein aan de voorzijde

- Ca. 10 meter diepe tuin op het oosten met vrij zicht

- Volledig voorzien van rolluiken

- Aluminium kozijnen met isolerende beglazing

- Keuken, badkamer en toiletruimte vernieuwd in 2022

- Meterkast en laminaatvloeren vernieuwd in 2022

- Centrale ligging nabij winkelcentrum Arkendonk

- Oplevering per direct mogelijk.

Indeling:

Begane grond:

Via de hal/entree met vernieuwde meterkast, toiletruimte met hangend toilet, kastruimte en trapopgang bereikt u de woonkamer.

De lichte woonkamer is strak afgewerkt met een moderne laminaatvloer en gestucte wanden en plafond. Onder de trap bevindt zich een praktische bergkast. De schuifpui zorgt voor veel lichtinval en een directe verbinding met de tuin. De totale oppervlakte van woonkamer en keuken bedraagt circa 40 m².

Aan de voorzijde van de woning ligt de open keuken, uitgevoerd in een moderne hoekopstelling en voorzien van diverse inbouwapparatuur, waaronder een inductiekookplaat, afzuigkap, combinatie oven-magnetron, vaatwasser, koelkast en vriezer.

Tuin:

Aan de voorzijde van de woning bevinden zich twee parkeerplaatsen op eigen terrein. Aan de achterzijde beschikt de woning over een garage en aparte berging, beide voorzien van elektriciteit.

De circa 10 meter diepe achtertuin, gelegen op het oosten, is onderhoudsvriendelijk aangelegd met terrassen en sierbestrating en biedt vrij uitzicht, een fijne plek om in alle rust van het buitenleven te genieten.

1e Verdieping:

Overloop met toegang tot drie slaapkamers:

Slaapkamer aan de voorzijde ca. 3.46 x 3.39 m, met vaste kast
Slaapkamer aan de achterzijde ca. 3.39 x 3.38 m, met dakkapel
Slaapkamer aan de achterzijde ca. 4.03 x 2.13 m, eveneens met dakkapel

De stijlvolle badkamer (ca. 2.02 x 2.20 m) is in 2022 vernieuwd en voorzien van een inloopdouche met regendouche, hangend toilet, wastafelmeubel, designradiator en fraai handdoekenrek.

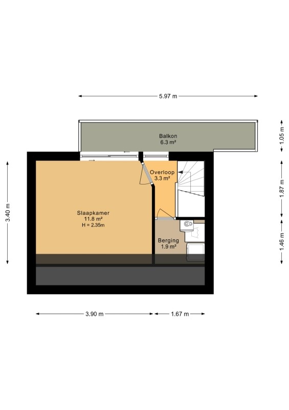
2e Verdieping:

Overloop met toegang tot de voorzolder met bergruimte, opstelplaats voor wasapparatuur en de combiketel.

De vierde slaapkamer (ca. 3.90 x 3.40 m) is voorzien van een laminaatvloer en beschikt over een schuifpui naar het balkon, wat zorgt voor extra licht en een prettig buitengevoel.

Ligging:

De woning is gunstig gelegen op loopafstand van winkelcentrum Arkendonk, basisscholen en diverse sportvoorzieningen. Ook het gezellige centrum van Oosterhout is snel bereikbaar.

Oosterhout staat bekend om haar sfeervolle historische centrum met de Markt, de Heuvel en het stadspark met de karakteristieke “Slotjes”. Daarnaast zijn de uitvalswegen richting de A27, A58 en A59 uitstekend bereikbaar. Breda is binnen circa 15 minuten te bereiken met de auto of het openbaar vervoer.

Interesse?
Bent u op zoek naar een instapklare gezinswoning met veel ruimte, goede parkeermogelijkheden en een centrale ligging? Maak dan snel een afspraak voor een bezichtiging en ervaar zelf het comfort en de mogelijkheden van deze woning.
 
+ lees de volledige omschrijving

Overdracht

Vraagprijs
€ 439.000 kosten koper
Status
Verkocht

Bouw

Soort woonhuis
woning, eengezinswoning
Bouwjaar
1979
Soort bouw
bestaande bouw
Isolatie
dubbel glas, volledig geïsoleerd

Indeling

Woonoppervlakte
109 m2
Inhoud
365 m3
Aantal kamers
5
Perceeloppervlakte
182 m2
Aantal woonlagen
3

Energie

Warm water
c.v.-ketel

Parkeergelegenheid

Garage
vrijstaand steen
 
Appelaar 55
4907 KD, OOSTERHOUT
Verkocht
€ 439.000 k.k.
Bouwjaar
1979
Inhoud
365 m3
Woonopp.
109 m2
Perceelopp.
182 m2
Kamers
5 kamers
 
 

Meer informatie over Appelaar 55, OOSTERHOUT