In Oosterhout-Zuid gelegen uitgebouwde middenwoning met voor- en achtertuin, stenen berging, achterom en gunstig energie label. De ligging in Oosterhout-Zuid is centraal nabij de uitvalswegen, busverbinding en de bossen.

De ligging is bijzonder centraal op loopafstand van winkelcentrum "Zuiderhout", basis- en voortgezet onderwijs, sportaccommodaties waaronder voetbal, hockey, tennis, atletiek en zwembad "de Warande".

Kenmerken:

- De woning is voorzien van energielabel A;
- Het betreft een uiterst energiezuinige woning v.v. recent vernieuwde kozijnen en gevelisolatie/ bekleding;
- Ruime woning met achtertuin v.v. uitgebouwde woonkamer, berging en 4 slaapkamers;
- Indien er meerdere kandidaten zijn, zal het woonhuis middels een loting verzorgd door de notaris verkocht worden.

de vraagprijs zal als transactieprijs aangehouden worden. Huurders die een sociale huurwoning van Thuisvester in de

gemeente Oosterhout achterlaten krijgen voorrang;

- Rustige locatie op loopafstand van winkelcentrum zuiderhout, met uitstekende bereikbaarheid van uitvalswegen;
- Het betreft een voormalige huurwoning van Thuisvester, hierdoor bent u gebonden aan een projectnotaris;
- Verkoopvoorwaarden zijn van toepassing, in de koopakte zullen o.a. een zelfbewoningsplicht, anti- speculatiebeding,

ouderdomsclausule en niet zelfbewoningsclausule worden opgenomen.

Begane Grond:

Begane Grond:

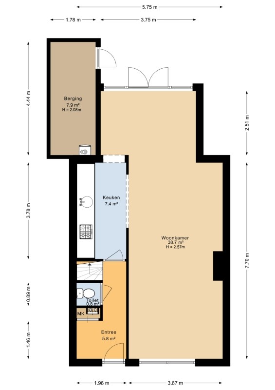
Entree/hal met houtenvloer, meterkast, toiletruimte en trapopgang welke toegang geeft tot de eerste verdieping.

Woon/eetkamer afmeting circa 10,21 x 3.67 m, type doorzon met houtenvloer, uitbouw, openslaande tuindeuren en grote raampartij aan de voorzijde.
De woonkamer geeft aan de achterzijde toegang tot de openkeuken.

Open keukenruimte afm. ca. 7.40m² welke eveneens is voorzien van een laminaatvloer. Het keukenblok is in een rechte opstelling geplaatst en beschikt over een spoelbak, afzuiging, 4 pits gasplaat, elektra en meer dan voldoende kastruimte.

Tuin:

Diepe keurige achtertuin welke is gelegen op het noord/ westen. De achtertuin beschikt over een berging welke is voorzien van elektra en hier bevindt zich de opstelplaats van de cv-ketel.

De achtertuin is middels een achterom bereikbaar.

Eerste Verdieping:

De overloop (ca.5.6m²) biedt toegang tot de vier slaapkamers en tot de vergrote badkamer. De badkamer (ca.4.9m²) is voorzien van een wastafel, tegelvloer en een ruime inloopdouche met regendouche. Vrijwel de gehele eerste verdieping is voorzien van een laminaat vloer.

Slaapkamer 1: ca. 10.4 m² aan de voorzijde gelegen, met grote raampartij.
Slaapkamer 2: ca. 10.5 m² aan de achterzijde gelegen met grote raampartij.
Slaapkamer 3: ca. 5.5 m² aan voorzijde gelegen met grote raampartij.
Slaapkamer 4: ca. 5.5 m² aan de achterzijde gelegen met grote raampartij.

Ligging:

Oosterhout is een gezellige en sfeervolle stad met een prachtig historisch stadshart de "Markt", de "Heuvel" en de geweldige stadsparken.
De woning is nabij het winkelcentrum van Zuiderhout gelegen, doch op een rustige locatie op loopafstand van scholen, parken en sportfaciliteiten.
Daarnaast zijn ook de uitvalswegen snel en eenvoudig bereikbaar. Oosterhout heeft een gunstige ligging ten opzichte van de A27 (Utrecht-Breda), de A58 (Bergen op Zoom – Eindhoven) en de A59 (Zonzeel – ‘s-Hertogenbosch).
Hartje Breda is binnen een kwartier met de auto of met de bus te bereiken.
 
+ lees de volledige omschrijving

Overdracht

Vraagprijs
€ 345.000 kosten koper
Status
Verkocht

Bouw

Soort woonhuis
woning, eengezinswoning
Bouwjaar
1966
Soort bouw
bestaande bouw
Isolatie
volledig geïsoleerd

Indeling

Woonoppervlakte
100 m2
Inhoud
358 m3
Aantal kamers
5
Perceeloppervlakte
157 m2
Aantal woonlagen
2

Energie

Warm water
c.v.-ketel

Parkeergelegenheid

Garage
geen garage
 
Brederostraat 16
4904 EH, OOSTERHOUT
Verkocht
€ 345.000 k.k.
Bouwjaar
1966
Inhoud
358 m3
Woonopp.
100 m2
Perceelopp.
157 m2
Kamers
5 kamers
 
 

Meer informatie over Brederostraat 16, OOSTERHOUT