Aan de achterzijde uitgebouwde middenwoning met sfeervolle tuin welke aan de achterzijde vrij is gelegen met terrassen in sierbestrating, berging en achterom.
De woning is energiezuinig, optimaal geïsoleerd, voorzien van zonnepanelen en is op de begane grond voorzien van vloerverwarming. Tevens beschikt de woning over drie (vijf mogelijk) ruime slaapkamers, een nette badkamer en een grote zolderruimte.

In kindvriendelijke omgeving gelegen woonhuis in de populaire wijk "de Contreie". De wijk ligt gunstig ten opzichte van de bossen "de Vrachelse Heide", sportaccommodaties, scholen, winkels en uitvalswegen. Ook het centrum van Oosterhout is op fietsafstand aanwezig.
"De Contreie" is een echte woonwijk waardoor hier nagenoeg alleen bestemmingsverkeer komt.
Voldoende parkeergelegenheid in de straat.
In de wijk zijn er tevens voldoende elektrische laadpalen aanwezig.

Kenmerken:

- Energielabel A.
- De buitenkozijnen, ramen en deuren zijn uitgevoerd in hardhout en voorzien van HR++glas.
- De woning is aan de achterzijde ca. 2.40m uitgebouwd.
- Zonnepanelen ( 8 ) aan de achterzijde van de woning.
- De woning is uitstekend onderhouden.
- De wanden zijn deels afgewerkt met strak stucwerk, en deels in spuitwerk.
- Het betreft een recent opgeleverde en uitstekend geïsoleerde middenwoning.
- Op korte fiets afstand gelegen van het stadscentrum van Oosterhout en nabij uitvalswegen.

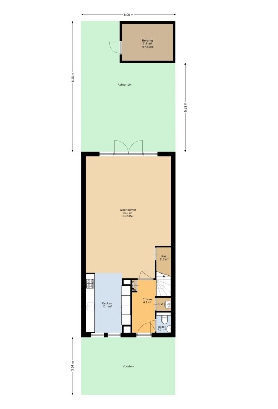
Begane Grond:

Entree/lichte hal v.v. tegelvloer, meterkast, toiletruimte met hangcloset en fonteintje, C.V.ruimte (Intergas HR - bwjr. 2017 ) en trapopgang die toegang geeft tot de eerste verdieping.

De aan de achterzijde ca. 2.40m uitgebouwde, tuin georiënteerde woonkamer, afmeting ca. 5.69 x 5.40m is eveneens voorzien van een tegelvloer, vloerverwarming, wanden met strak stucwerk, vaste voorraadkast en openslaande deuren die toegang geven tot de achtertuin.

Aan de voorzijde gelegen open keuken afm. ca. 10m². is uitgerust met een luxe keukenblok met composiet werkblad en diverse Siemens inbouwapparatuur te weten; 5 pits gaskookplaat, RVS-afzuigschouw, (stoom) oven, combimagnetron, quooker, vaatwasser, koelkast

en voldoende kastruimte.

Tuin:

De op het zuiden gelegen achtertuin is aan de achterzijde gelegen aan het Markkanaal, geheel omsloten en uitgerust met een verhoogd zonneterras, berging v.v. elektra, en achterom. Door de ligging op het zuiden geniet men vrijwel de gehele dag van de zon.

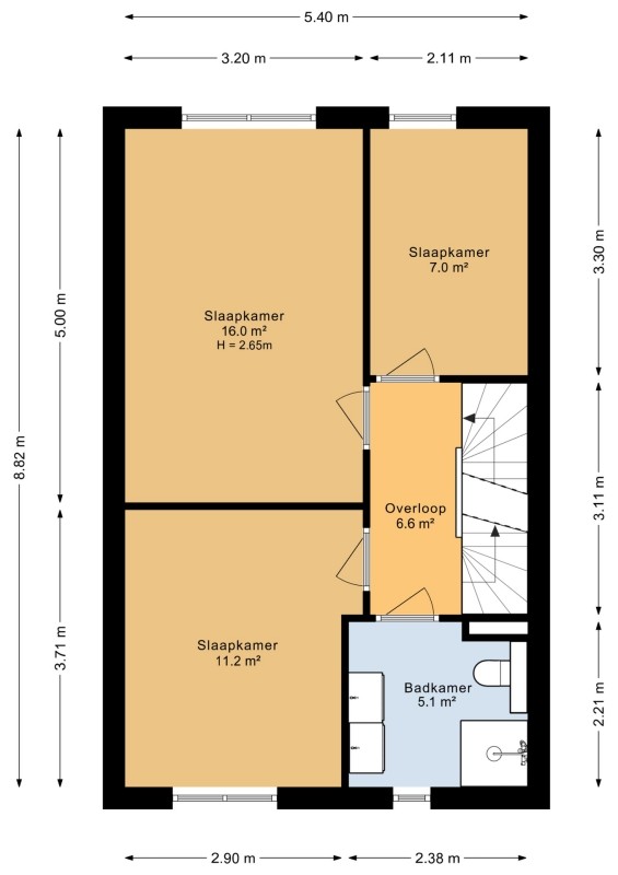
Eerste Verdieping:

Slaapkamer 1, achterzijde, afmeting ca. 16 m² met draai/kiepramen en rolluik
Slaapkamer 2. voorzijde, afmeting ca. 11,2 m² met laminaatvloer, frans balkon en draai/kiepdeuren.
Slaapkamer 3. achterzijde, afmeting ca.7 m², met draai/kiepramen en rolluik.
Geheel betegelde badkamer met inloopdouche met glazenwand, wastafel met meubel, design radiator en tweede hangcloset.

Tweede Verdieping:

Middels de vaste trap is de royale geïsoleerde (open)zolderruimte (afm. ca. 26,3m²) bereikbaar alwaar eenvoudig een extra slaapkamer gecreëerd kan worden. Tevens bevinden zich hier de aansluitingen wasmachine en droger.
 
+ lees de volledige omschrijving

Overdracht

Vraagprijs
€ 525.000 kosten koper
Status
Verkocht

Bouw

Soort woonhuis
woning, eengezinswoning
Bouwjaar
2017
Soort bouw
bestaande bouw
Isolatie
volledig geïsoleerd

Indeling

Woonoppervlakte
142 m2
Inhoud
513 m3
Aantal kamers
5
Perceeloppervlakte
157 m2
Aantal woonlagen
3

Energie

Warm water
c.v.-ketel

Parkeergelegenheid

Garage
geen garage
 
Gebint 39
4906 LT, OOSTERHOUT
Verkocht
€ 525.000 k.k.
Bouwjaar
2017
Inhoud
513 m3
Woonopp.
142 m2
Perceelopp.
157 m2
Kamers
5 kamers
 
 

Meer informatie over Gebint 39, OOSTERHOUT