Op leuke locatie, in het centrum van Oosterhout gelegen, 2-kamer appartement met extra bergzolder, balkon op het zuiden en berging op de begane grond. Het appartement ligt bijzonder centraal en alle voorzieningen zijn op loopafstand bereikbaar.

Bijzonderheden:
- Appartement met balkon op het zuiden;
- Op de tweede verdieping gelegen;
- Laminaatvloer in het gehele appartement.
- Rond om het appartementen complex zijn openbare parkeerplaatsen. Hier is een parkeervergunning vereist.
- De kosten voor een parkeervergunning bedraagt thans (2025) circa € 60-- per jaar voor één auto. Het aanvragen van deze vergunning is voor rekening en risico van koper.
- Indicatie bijdrage servicekosten € 175,-- per maand.
- Keuze notaris is voorbehouden aan de verkopende partij, zijnde VAD Notarissen N.V. te Rotterdam.

De indeling is als volgt:
Centrale toegang, aan de zij-kant van het complex, met belplateau, brievenbussen en de trapopgang.

De indeling van het appartement is als volgt:
In het portaal van de tweede verdieping is een kast waarin de cv-ketel en geiser is gesitueerd.
Entree met laminaatvloer, meterkast en betegeld toilet met fontein.

Vanuit de entree zijn de diverse vertrekken toegankelijk.
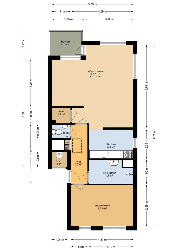
Woon/eetkamer afmeting circa 5.76 x 3.46 m. en 3.22 x 2.24 m. met laminaatvloer, toegang tot het balkon op het zonnige zuiden en in open verbinding met de keuken. De keuken is uitgerust met een eenvoudig keukenblok voorzien van wasemkap. De keuken heeft een afmeting van circa 3.10 x 2.17 m.
Aan de achterzijde is de slaapkamer gelegen met een afmeting van circa 4.32 x 2.93 m. Eveneens met laminaatvloer.
Gedeeltelijk betegelde badkamer met douche, vaste wastafel en aansluiting ten behoeve van de wasautomaat.

Bergzolder:
Vanuit de entree is middels een vlizotrap toegang tot een bergzolder.

Berging:
Op de begane grond is een eigen stenen berging aanwezig.

Parkeren:
Rondom het appartementen complex zijn openbare parkeerplaatsen. Hier is een parkeervergunning vereist.
De kosten voor een parkeervergunning bedraagt thans (2025) circa € 60,-- per jaar voor één auto. Het aanvragen van deze vergunning is voor rekening en risico van eigenaar.

De ligging is op loopafstand van het gezellige centrum met zijn winkelstraten en het overdekt winkelcentrum "Arendshof". Voorts vele restaurants op- en rondom "de Markt" en "de Heuvel" en uitgaansgelegenheden. Voor de rust kunt u vertoeven in de gezellige stadsparken welke eveneens op loopafstand bereikbaar zijn.
Daarnaast zijn ook de uitvalswegen snel en eenvoudig bereikbaar. Oosterhout heeft een gunstige ligging ten opzichte van de A27 (Utrecht-Breda), de A58 (Bergen op Zoom – Eindhoven) en de A59 (Zonzeel – ‘s-Hertogenbosch).
Hartje Breda is binnen een kwartier met de auto of met de bus te bereiken.

Deze informatie is geheel vrijblijvend, uitsluitend voor geadresseerde bestemd en niet bedoeld als aanbod. Ten aanzien van de juistheid van de vermelde informatie kan door makelaarskantoor Biemans B.V. geen aansprakelijkheid worden aanvaard, noch kan aan de vermelde informatie enig recht worden ontleend.
 
+ lees de volledige omschrijving

Overdracht

Vraagprijs
€ 295.000 kosten koper
Status
Verkocht

Bouw

Soort woonhuis
appartement, portiekflat
Bouwjaar
1986
Soort bouw
bestaande bouw
Isolatie
dubbel glas

Indeling

Woonoppervlakte
63 m2
Inhoud
306 m3
Aantal kamers
1
Perceeloppervlakte
- m2
Aantal woonlagen
2

Energie

Warm water
geiser eigendom

Parkeergelegenheid

Garage
geen garage
 
Giethuiserf 22
4901 NA, OOSTERHOUT
Verkocht
€ 295.000 k.k.
Bouwjaar
1986
Inhoud
306 m3
Woonopp.
63 m2
Perceelopp.
m2
Kamers
1 kamers
 
 

Meer informatie over Giethuiserf 22, OOSTERHOUT