Midden in het centrum van Oosterhout, doch rustig gelegen, royale hoekwoning met garage/berging met bergzolder, geweldige tuin op het zuiden gelegen met achterom.
Het betreft een zeer kindvriendelijke locatie met parkeerplaats op eigen terrein. De woning is tevens zeer gunstig gesitueerd, op loopafstand, van het winkelcentrum Arendshof, "de Heuvel" en "de Markt" in Oosterhout.

Bijzonderheden:
- Leuke hoekwoning met garage/berging in het centrum van Oosterhout gelegen;
- Tuin op het zuiden met achterom;
- De woning is voorzien van dubbele beglazing;
- Woning voorzien van laminaatvloeren;
- Winkelcentrum Arendshof is op enkele minuten lopen van de woning gelegen;
- Parkeervergunning door koper zelf aan te vragen bij de Gemeente Oosterhout, kosten circa € 60,-- per jaar voor één auto;
- Keuze notaris is voorbehouden aan de verkopende partij, zijnde VAD Notarissen N.V. te Rotterdam.

De indeling van het pand is als volgt:
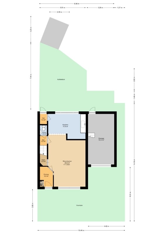
Begane grond:
De entree/hal met meterkast en garderobenis geeft toegang tot de woonkamer.
De lichte woon/eetkamer afmeting circa 5.51 x 4.43/3.82 m. is voorzien van een bergkast onder de trapopgang.
Vanuit de woon/eetkamer heeft u toegang tot de tussenhal met trapopgang naar de eerste verdieping en een gedeeltelijk betegeld toilet en fonteintje.
Aan de achterzijde gesitueerde open keuken afmeting circa 4.43 x 3.08 m. met eenvoudig keukenblok.
Vanuit de keuken is middels een tussenhalletje de achtertuin te bereiken.

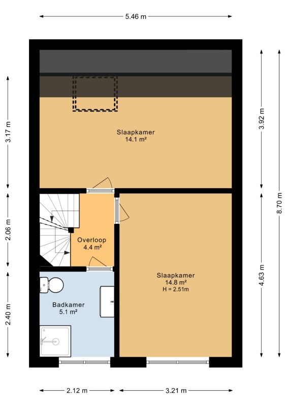
Eerste Verdieping:
Overloop welke toegang geeft tot de twee slaapkamers, alsmede de badkamer en vaste trapopgang naar de tweede verdieping.
Slaapkamer achterzijde afmeting circa 3.98 x 5.46 m.
Slaapkamer voorzijde afmeting circa 4.61 x 3.17 m.
De eenvoudige badkamer afmeting circa 2.43 x 2.19 m. beschikt over een douche, vaste wastafel in meubel, toilet en aansluiting ten behoeve van de wasautomaat.

Tweede Verdieping:
Voorzolder met unit mechanische afzuiging, opstelplaats combi-ketel en bergruimte.
Volwaardige slaapkamer afmeting circa 3.65 x 3.15 m en voorzien van een tuimelraam.

Garage en tuin:
De garage, welke is gelegen naast de woning, is voorzien van een bergzolder en kanteldeur alsmede loopdeur naar de tuin. Voorts treft u hier elektriciteit aan. Voor de garage is een oprit aanwezig.
Leuke tuin op het zuiden gelegen met terras en achterom.

Ligging:
De ligging is op loopafstand van het gezellige centrum met zijn winkelstraten en het overdekt winkelcentrum "Arendshof". Voorts vele restaurants op- en rondom "de Markt" en "de Heuvel" en uitgaansgelegenheden. Voor de rust kunt u vertoeven in de gezellige stadsparken welke eveneens op loopafstand bereikbaar zijn.
Daarnaast zijn ook de uitvalswegen snel en eenvoudig bereikbaar. Oosterhout heeft een gunstige ligging ten opzichte van de A27 (Utrecht-Breda), de A58 (Bergen op Zoom – Eindhoven) en de A59 (Zonzeel – ‘s-Hertogenbosch).
Hartje Breda is binnen een kwartier met de auto of met de bus te bereiken.

Deze informatie is geheel vrijblijvend, uitsluitend voor geadresseerde bestemd en niet bedoeld als aanbod. Ten aanzien van de juistheid van de vermelde informatie kan door makelaarskantoor Biemans B.V. geen aansprakelijkheid worden aanvaard, noch kan aan de vermelde informatie enig recht worden ontleend.
 
+ lees de volledige omschrijving

Overdracht

Vraagprijs
€ 450.000 kosten koper
Status
Beschikbaar

Bouw

Soort woonhuis
woning, eengezinswoning
Bouwjaar
1985
Soort bouw
bestaande bouw
Isolatie
dakisolatie, muurisolatie, vloerisolatie, dubbel glas

Indeling

Woonoppervlakte
109 m2
Inhoud
491 m3
Aantal kamers
4
Perceeloppervlakte
200 m2
Aantal woonlagen
3

Energie

Warm water
c.v.-ketel

Parkeergelegenheid

Garage
aangebouwd steen
 
Giethuiserf 49
4901 NC, OOSTERHOUT
€ 450.000 k.k.
Bouwjaar
1985
Inhoud
491 m3
Woonopp.
109 m2
Perceelopp.
200 m2
Kamers
4 kamers
 
 

Meer informatie over Giethuiserf 49, OOSTERHOUT