In de geliefde wijk ‘Slotjes’, op loopafstand van het centrum, ligt deze geheel gerenoveerde vrijstaande middels berging geschakelde woning in een rustige en groene straat. De woning is gelegen op een perceel met veel privacy en beschikt over een oprit met een uitgebouwde garage voor 2 auto's. Tevens biedt deze woning de mogelijkheid tot het creëren van een levenbestendige woning!
De combinatie van privacy, de rustige straat en de mogelijkheid om de woning levensbestendig in te richten maakt het erg aantrekkelijk.

Kenmerken:

In 2023 geheel gemoderniseerde vrijstaand middels berging geschakelde woning:
-Volledig geïsoleerd;
-Nieuwe dakbedekking, pannen, goten en zinken waterafvoerpijpen (voor- en achter);
-De gevels van de woning zijn gestraald, opnieuw gevoegd en geïmpregneerd;
-Geheel glad gestucte wanden en plafonds met lijst en koofafwerking;
-Screens aan de voorzijde;
-Aan de achterzijde een fraai aluminium afgewerkt dakkapel over de volle breedte;
-3 slaapkamers;
-Airco woonkamer en 2 slaapkamers;
-Badkamer en toilet;
-Verlengde garage geschikt voor 2 auto's, met eigen meterkast v.v. 380 volt aansluitingen;
-Loze ringleidingen vanuit meterkast woning naar garage en naar zolder ter voorbereiding oplaadpunt elektrische auto en zonnepanelen; Oprit reeds v.v. een kastje met stroomdraad voor oplaadpunt auto, en een loze ringleiding voor een datakabel;
-CV ketel bouwjaar 2023, met telefoonapp te besturen;
-Vernieuwde meterkast;
-Energielabel B;
-Privacy biedende achtertuin van ca. 12 meter, gelegen op het zuid/oosten, met voorbereiding elektra t.b.v. zonwering;
-Automatisch druppelslangsysteem in de voor- en achtertuin met nog 4 pop up sproeiers in de achtertuin, met telefoonapp te besturen;
Deze woning is geschikt voor wonen en slapen op de begane grond!

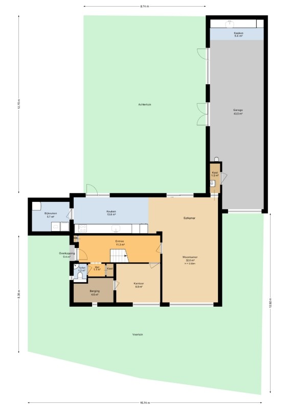
Indeling:

Begane grond:

Vanuit de entree/hal met plavuizenvloer is via tussenhal een vaste kast en de toiletruimte met zwevend closet en fontein bereikbaar. Verder vanuit de entree de aan de voorzijde gelegen werkkamer c.q. slaapkamer, inpandige berging (voorheen badkamer) en de woonkamer.

Woonkamer, afm. ca. 7.51 x 3.98 m., met visgraat parketvloer, airco en schuifpui naar de tuin. De wanden en het plafonds zijn glad gestuct met gordijnkoven en plafondlijsten.
Aan de tuinzijde treft u de modern ingerichte keuken met recht keukenblok en kastenwand. De keuken is voorzien van een inductie kookplaat met Bora afzuiging, vaatwasser koelkast en magnetron/oven. Verder de nodige kast- en laadruimte. Vanuit de keuken is zowel de bijkeuken als de tuin bereikbaar.
De bijkeuken is v.v. een plavuizenvloer en aansluitingen t.b.v. de wasautomaat en droger.
De aan de voorzijde gelegen werkkamer, afmeting circa 3.15 x 2.76 m., is v.v. een visgraat parketvloer. Deze ruimte kan ook gebruikt worden als slaapkamer in combinatie met de naastgelegen berging (voorheen badkamer).
De inpandige berging is thans ingericht als berging v.v. plavuizenvloer. Oorspronkelijk was deze ruimte een badkamer.

1e Verdieping:

Overloop met toegang tot 2 slaapkamers, 1 inloopkastkamer en badkamer. De gehele verdieping is m.u.v. de badkamer v.v. een parketvloer. Vanaf de overloop is middels een luik de vliering bereikbaar.
Slaapkamer voorzijde, afm. ca. 20m², met dakkapel, zijraam en bergruimte achter de knieschotten. Verder is deze slaapkamer v.v. airco en een fraai lichtplan.
Geheel gemoderniseerde badkamer met dakkapel, afm. ca. 3.19 x 1.89 m., uitgerust met ligbad v.v. massage, doucecabine met regendouche, wastafelmeubel met dubbele wasbak, zwevend wandcloset en designradiator voor warme handdoeken.
Slaapkamer achterzijde, afm. ca.14,8 m², met dakkapel, zijraam en bergruimte achter de knieschotten. Deze slaapkamer is ook v.v. airco en fraai lichtplan.
De inloopkastkamer is toegankelijk vanaf de overloop.

Tuin en garage:
Geheel omsloten tuin op het zuid/oosten gelegen. Tegen de perceelgrens aan de achterzijde zijn leilindes geplaatst waardoor er maximale privacy is. Verder borders met beplanting, een gazon en een fraai betegeld terras. De voor- en achtertuin is v.v. een automatische druppelslang en in de achtertuin nog extra 4 pop up besproeiingssysteem.

De zeer fraai uitgevoerde verlengde garage beschikt over een automatische segmentdeur, een keukenblok, een urinoir, meterkast met 380 volt aansluitingen, een vaste kast met CV-ketel (2023). Vanuit de garage is middels tuindeuren en loopdeur de tuin bereikbaar. De garage is geschikt voor het plaatsen van 2 auto's.

Ligging:
De woning is op steenworpafstand van (basis)scholen, het gezellige winkelcentrum Arendshof, eeuwenoude stadsparken, de Markt, supermarkten en openbaar vervoer gelegen.
Oosterhout is een gezellige en sfeervolle stad met een prachtig historisch stadshart de "Markt", de "Heuvel" en een geweldig stadspark. Aan de rand van het stadspark liggen de zogenaamde "Slotjes” (voormalige kasteeltjes).

Daarnaast zijn ook de uitvalswegen snel en eenvoudig bereikbaar. Oosterhout heeft een gunstige ligging ten opzichte van de A27 (Utrecht-Breda), de A58 (Bergen op Zoom – Eindhoven) en de A59 (Zonzeel – ‘s-Hertogenbosch).
Hartje Breda is binnen een kwartier met de auto of met de bus te bereiken. Het station is met speciale busverbinding ook met circa 20 minuten bereikbaar.
 
+ lees de volledige omschrijving

Overdracht

Vraagprijs
€ 795.000 kosten koper
Status
Verkocht

Bouw

Soort woonhuis
woning, eengezinswoning
Bouwjaar
1963
Soort bouw
bestaande bouw
Isolatie
dubbel glas, volledig geïsoleerd

Indeling

Woonoppervlakte
136 m2
Inhoud
690 m3
Aantal kamers
5
Perceeloppervlakte
388 m2
Aantal woonlagen
3

Energie

Warm water
c.v.-ketel

Parkeergelegenheid

Garage
aangebouwd steen
 
Heer Arnoudstraat 1
4902 BR, OOSTERHOUT
Verkocht
€ 795.000 k.k.
Bouwjaar
1963
Inhoud
690 m3
Woonopp.
136 m2
Perceelopp.
388 m2
Kamers
5 kamers
 
 

Meer informatie over Heer Arnoudstraat 1, OOSTERHOUT