Bijzonder sfeervol 2-kamer appartement op de tweede verdieping gelegen en bereikbaar met een lift. Het appartementengebouw is gelegen aan het mooi aangelegde "Lukwelpark" in de fijne wijk "Slotjes-Midden" aan de rand van het centrum. Het appartement heeft een hedendaagse uitstraling met gebruik van fraaie materialen (woonkamer en keuken). Het balkon is vrij gelegen en gesitueerd op de westenkant waardoor u tot laat in de avond kunt genieten van de zon. U kunt lopend naar het gezellige centrum van Oosterhout waarbij u door het stadspark komt. Het appartement heeft een eigen berging op de begane grond en rondom het gebouw is er voldoende gratis parkeergelegenheid en 2 openbare oplaadpalen.

Bijzonderheden:
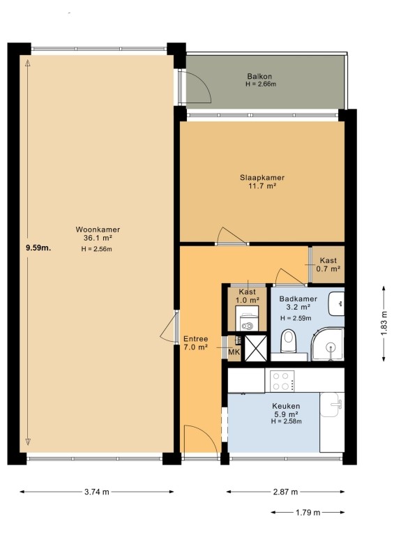
-Riante woon/eetkamer door de samenvoeging van de oorspronkelijke woonkamer met een slaapkamer;
-Huidige 2-kamer appartement is eenvoudig terug te brengen in een 3-kamer appartement;
-Luxe, moderne keukenopstelling voorzien van inbouwapparatuur;
-Strak gestucte wandafwerking;
-Kunststof kozijnen aan de westzijde en rondom isolerende beglazing;
-Heerlijk balkon op het westen;
-Dubbele beglazing (HR+)
-Privéberging op de begane grond;
-Het appartementencomplex is gelegen nabij het centrum en aan het prachtige, groene "Lukwelpark" met diverse vijverpartijen.
-In de directe omgeving is voldoende gratis parkeergelegenheid aanwezig
-De servicekosten bedragen circa € 293,-- per maand inclusief € 105,-- voorschot stookkosten

Appartement:
Via de afgesloten centrale hal komt u bij het trappenhuis en de lift. Aan de voorzijde van het pand treft u het belplateau en de brievenbussen aan.

De indeling van het appartement is als volgt:
Hal/entree met strakke gietvloer en meterkast. Vanuit de hal zijn de diverse vertrekken te bereiken.
Riante woon/eetkamer van circa 36 m2 met parketvloer, strakke wandafwerking en toegang tot het balkon op het westen. De woonkamer is vergroot door het samenvoegen van een slaapkamer bij de woonkamer. Op eenvoudige wijze zou hier ook weer een slaapkamer te realiseren zijn.
Zowel de woonkamer als keuken beschikken over grote raampartijen waardoor het een bijzonder licht appartement betreft. Op het balkon kunt u zowel in de middag als avond genieten van de zon.
De keuken is aan de galerij zijde gelegen en is voorzien van een pvc vloer in visgraat patroon gelegd. De hoekkeuken is onlangs geplaatst en modern van opzet met een luxe uitstraling en hoogwaardig afgewerkt. De keuken is uitgerust met diverse inbouwapparatuur, te weten; inductie kookplaat, vaatwasser, combi(stoom)oven en koelkast met vriesvak bovenin.
De slaapkamer is aan de balkonzijde gelegen en heeft een afmeting van circa 12 m2 met een eiken houten vloer.
De betegelde badkamer is voorzien van douche, vaste wastafel en het toilet.
Royale bergkast met aansluiting ten behoeve van de wasautomaat en droger.
Voorts een bergkast met de (huur) boiler.

Begane grond:
Op de begane grond is via de buitenzijde een eigen berging toegankelijk. In de berging treft u elektriciteit aan.

Het "Lukwelpark" is voorzien van diverse vijverpartijen, volwassen beplanting en sportmogelijkheden. Het appartement is voorts gelegen in de gewilde wijk "Slotjes-Midden" op loopafstand van het gezellige (winkel)centrum van Oosterhout, de andere stadsparken en een bus opstapplaats.
Daarnaast zijn ook de uitvalswegen snel en eenvoudig bereikbaar. Oosterhout heeft een gunstige ligging ten opzichte van de A27 (Utrecht-Breda), de A58 (Bergen op Zoom – Eindhoven) en de A59 (Zonzeel – ‘s-Hertogenbosch). Hartje Breda is binnen een kwartier met de auto of met de bus te bereiken.

Deze informatie is geheel vrijblijvend, uitsluitend voor geadresseerde bestemd en niet bedoeld als aanbod. Ten aanzien van de juistheid van de vermelde informatie kan door makelaarskantoor Biemans B.V. geen aansprakelijkheid worden aanvaard, noch kan aan de vermelde informatie enig recht worden ontleend.
 
+ lees de volledige omschrijving

Overdracht

Vraagprijs
€ 298.000 kosten koper
Status
Verkocht

Bouw

Soort woonhuis
appartement, galerijflat
Bouwjaar
1965
Soort bouw
bestaande bouw
Isolatie
dubbel glas

Indeling

Woonoppervlakte
70 m2
Inhoud
223 m3
Aantal kamers
2
Perceeloppervlakte
- m2
Aantal woonlagen
1

Energie

Warm water
elektrische boiler huur

Parkeergelegenheid

Garage
geen garage
 
Hertogenlaan 104
4902 AT, OOSTERHOUT
Verkocht
€ 298.000 k.k.
Bouwjaar
1965
Inhoud
223 m3
Woonopp.
70 m2
Perceelopp.
m2
Kamers
2 kamers
 
 

Meer informatie over Hertogenlaan 104, OOSTERHOUT