Op uitstekende locatie in de jongste wijk van Oosterhout ‘’de Contreie’’ gelegen uitgebouwde hoekwoning met garage met elektrische roldeur, leuk aangelegde achtertuin op het zuiden en achterom. Deze hoekwoning is optimaal geïsoleerd, voorzien van zonnepanelen en is op de begane grond voorzien van een visgraatvloer met vloerverwarming. Tevens beschikt de woning over 4 ruime slaapkamers, een luxe badkamer en een grote zolderruimte met werkkamer en mogelijkheid voor een 5e slaapkamer.
De woning is aan de voorzijde vrij gelegen met uitzicht over een groenstrook. Heerlijke zonnige tuin op het zuiden met diverse borders met beplanting, royaal terras en achterom.
De woning is op fietsafstand van het stadscentrum van Oosterhout, sportaccommodaties en de bossen van de "Vrachelse Heide".

Bijzonderheden:
-Royale hoekwoning met garage en royale oprit voor 2 auto's;
-Energielabel A;
-De buitenkozijnen, ramen en deuren zijn uitgevoerd in hardhout en voorzien van HR++glas;
-De slaapkamers zijn uitgerust met rolluiken;
-Airconditioning woonkamer en ouderslaapkamer;
-De woning is recent voorzien van een houten visgraatvloer op de begane grond;
-Strakke wandafwerking;
-Het betreft een recent opgeleverde en uitstekend geïsoleerde hoekwoning.

De indeling is als volgt:

Begane grond:
Entree/lichte hal met meterkast, toiletruimte met hangcloset en fonteintje, en trapopgang naar de eerste verdieping.
De aan de achterzijde uitgebouwde woonkamer is voorzien van een houten visgraatvloer, vaste kast en schuifpui naar de achtertuin. Aan de voorzijde gelegen open keuken afm. ca. 10m². is uitgerust met een luxe keukenblok met composiet werkblad en diverse Bauknecht inbouwapparatuur te weten; 5 pits gaskookplaat (Elektrolux), RVS-afzuigschouw met ingebouwde verlichting (Novy), combimagnetron, oven, quooker, vaatwasser, koelkast en voldoende kastruimte.

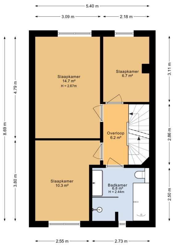
Eerste verdieping:
Overloop met toegang tot 3 slaapkamers alsmede tot de badkamer. Overloop en slaapkamers voorzien van een hoogwaardige PVC vloer. Slaapkamer achterzijde afmeting circa 14,7 m² met airconditioning en draai/kiepramen.. Slaapkamer voorzijde afmeting circa 6,7 m² met draai/kiepramen. Slaapkamer achterzijde afmeting circa 10,3 m² met draai/kiepramen.
Luxe badkamer met ligbad, inloop (stort)douche, wastafelmeubel met twee kranen en tweede hangcloset.

Tweede verdieping:
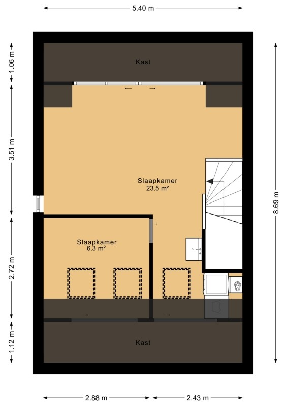
Middels de vaste trap is de royale geïsoleerde gedeeltelijk open zolderruimte bereikbaar. Aan de voorzijde op de zolder is een werkkamer gecreëerd, met een afmeting van circa 6 m2, welke voorzien is van een hoogwaardige PVC vloer en 2 tuimelramen.
Op het zoldergedeelte is aan de achterzijde een dakkapel geplaatst met extra bergruimte achter de knieschotten. Deze ruimte is eveneens voorzien van een hoogwaardige PVC vloer en thans in gebruik als slaapkamer van circa 23,5 m2. Deze ruimte is eenvoudig af te schermen. Voorts is op de voorzolder een tuimelraam, de opstelplaats van de c.v.-combiketel ( Intergas HR, 2013), de omvormer voor de zonnepanelen, mechanische ventilatie en aansluitingen wasmachine en droger aanwezig.

Garage en tuin:
De woning beschikt over een eigen oprit waar u twee auto's kunt parkeren. De garage/berging heeft een afmeting van circa 18 m2 en is voorzien van een elektrische roldeur. De tuin is met name in de breedte achter het pand en de garage gelegen en ligt gunstig ten opzichte van de zon aangezien deze op het zuiden is gesitueerd. Heerlijk terras aanwezig om van de zon te genieten.

Omgeving:
In kindvriendelijke omgeving gelegen woonhuis in de populaire wijk "de Contreie". De wijk ligt gunstig ten opzichte van de bossen "de Vrachelse Heide", sportaccommodaties, scholen, winkels en uitvalswegen. Ook het centrum van Oosterhout is op fietsafstand aanwezig.
"De Contreie" is een echte woonwijk waardoor hier nagenoeg alleen bestemmingsverkeer komt.

Deze informatie is geheel vrijblijvend, uitsluitend voor geadresseerde bestemd en niet bedoeld als aanbod. Ten aanzien van de juistheid van de vermelde informatie kan door makelaarskantoor Biemans B.V. geen aansprakelijkheid worden aanvaard, noch kan aan de vermelde informatie enig recht worden ontleend.
 
+ lees de volledige omschrijving

Overdracht

Vraagprijs
€ 595.000 kosten koper
Status
Verkocht

Bouw

Soort woonhuis
woning, eengezinswoning
Bouwjaar
2014
Soort bouw
bestaande bouw
Isolatie
volledig geïsoleerd

Indeling

Woonoppervlakte
138 m2
Inhoud
574 m3
Aantal kamers
6
Perceeloppervlakte
218 m2
Aantal woonlagen
3

Energie

Warm water
c.v.-ketel

Parkeergelegenheid

Garage
vrijstaand steen
 
IJzertijd 51
4906 LD, OOSTERHOUT
Verkocht
€ 595.000 k.k.
Bouwjaar
2014
Inhoud
574 m3
Woonopp.
138 m2
Perceelopp.
218 m2
Kamers
6 kamers
 
 

Meer informatie over IJzertijd 51, OOSTERHOUT