Aan rand van de woonwijk "Vrachelen II" te Oosterhout is dit 3-kamer appartement gelegen met groot balkon op het westen, berging op de begane grond en eigen parkeerplaats op het buitenterrein. Het appartement is gelegen op de tweede verdieping van het kleinschalig appartementencomplex “de Novelle".
Royale inpandige centrale hal met lift en trappenhuis.
De wijk ligt bijzonder centraal nabij diverse uitvalswegen o.a. de A59 en A27.
Het gezellige centrum van Oosterhout is op 10 minuten rijden te bereiken. Op korte afstand bevinden zich diverse faciliteiten, waaronder supermarkten en scholen.

Bijzonderheden:

* Royaal appartement met heerlijk balkon op het westen;
* Vrij uitzicht rondom;
* Grote centrale hal met lift en trappenhuis;
* Gedeeltelijk open keuken met inbouwapparatuur;
* Rondom hardhouten kozijnen voorzien van isolerende beglazing;
* Volledig geïsoleerd en geluidsarm;
* Glasvezelaansluiting;
* Veel privacy dankzij de indeling van het gebouw;
* Eigen parkeerplaats op buitenterrein.

Begane grond
Het appartement is toegankelijk middels een centrale hal met bellentableau, brievenbussen en een lift naar de verdiepingen. Tevens is er op de begane grond toegang tot de berging, behorend bij het appartement. Via de met videofoon beveiligde toegang komt U in de ruime centrale hal. Vanuit de centrale hal kunt U met de lift naar de tweede verdieping. U komt hier uit in een ruimte hal die toegang geeft tot drie appartementen.

De indeling van het appartement is als volgt:
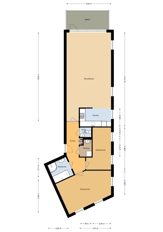
Hal/entree met meterkast vanwaar u toegang heeft tot zowel de woon/eetkamer met open keuken als tot de slaapkamers, badkamer, toilet en bijkeuken.
Rechte woon/eetkamer met zowel grote pui aan de balkonzijde als ramen aan de zijkant van het pand. Vanuit de woonkamer is er toegang tot het balkon. Totale oppervlakte woonkamer met keuken bedraagt circa 48 m2.
Balkon op het westen, voorzien van elektrisch bedienbare zonwering en elektrisch wandcontactdoos.
De keuken is gedeeltelijk open met een keukenblok in een praktische L-opstelling met diverse boven- en onderkastjes en met een RVS afzuigkap boven het kookgedeelte. De keuken is voorzien van diverse inbouwapparatuur; 5-pits gaskookplaat, vaatwasser, koelkast met vriesgedeelte en een combinatie oven/magnetron. De wanden van de keuken zijn afgewerkt met keramische tegels.

Bijkeuken met combiketel (Vaillant), unit mechanisch afzuiging en aansluitingen wasmachine en wasdroger.

Het appartement beschikt over 2 slaapkamers met afmeting respectievelijk 19 m2 en 10 m2. Ook in de slaapkamers is er veel natuurlijke lichtinval.
De betegelde badkamer is uitgerust met een ligbad, douche met douchecabine en vaste wastafel. Separaat toilet, tot circa halve wandhoogte betegeld, met staand closet, fonteintje en ventilatie.

Eigen berging aanwezig. Eigen parkeerplaats op het buitenterrein.

De Servicekosten/bijdrage VVE bedragen circa € 187,- per maand. Hierin zitten onder andere opgenomen: Reservering groot onderhoud, premie opstalverzekering en de energiekosten van de gemeenschappelijke ruimten.

Omgeving:
De wijk ligt gunstig ten opzichte van de bossen "de Vrachelse Heide", sportaccommodaties en uitvalswegen. Ook het centrum van Oosterhout is op fietsafstand aanwezig.

Deze brochure bestaat uit vrijblijvende informatie en is met de grootste zorg samengesteld, echter aan de inhoud van deze brochure kunnen geen rechten worden ontleend. Indelingstekeningen en maatvoeringen zijn slechts indicatief, kunnen afwijken van de werkelijke situatie en zijn uitsluitend bedoeld om een indruk te geven van de indeling.
 
+ lees de volledige omschrijving

Overdracht

Vraagprijs
€ 420.000 kosten koper
Status
Beschikbaar

Bouw

Soort woonhuis
appartement, portiekflat
Bouwjaar
1999
Soort bouw
bestaande bouw
Isolatie
dakisolatie, muurisolatie, vloerisolatie, dubbel glas

Indeling

Woonoppervlakte
96 m2
Inhoud
295 m3
Aantal kamers
3
Perceeloppervlakte
- m2
Aantal woonlagen
1

Energie

Warm water
c.v.-ketel

Parkeergelegenheid

Garage
geen garage
 
Ina Dammanstraat 17
4906 JD, OOSTERHOUT
€ 420.000 k.k.
Bouwjaar
1999
Inhoud
295 m3
Woonopp.
96 m2
Perceelopp.
m2
Kamers
3 kamers
 
 

Meer informatie over Ina Dammanstraat 17, OOSTERHOUT