In Oosterhout-Zuid gelegen middenwoning met voor- en achtertuin, stenen berging en achterom. De ligging in Oosterhout-Zuid is centraal nabij de uitvalswegen, busverbinding en de bossen.

De ligging is bijzonder centraal op loopafstand van winkelcentrum "Zuiderhout", basis- en voortgezet onderwijs, sportaccommodaties waaronder voetbal, hockey, tennis, atletiek en zwembad "de Warande".

Kenmerken:

-De woning is voorzien van energielabel A;
-Het betreft een uiterst energiezuinige woning v.v. recent vernieuwde kozijnen en gevelisolatie/ bekleding;
-Ruime woning met achtertuin v.v. gemetselde berging en 4 slaapkamers;
-Indien er meerdere kandidaten zijn, zal het woonhuis middels een loting verzorgd door de notaris. verkocht worden. De vraagprijs zal als transactieprijs aangehouden worden. Huurders die een sociale huurwoning van Thuisvester in de gemeente Oosterhout achterlaten krijgen voorrang.

-Rustige locatie op loopafstand van winkelcentrum zuiderhout, met uitstekende bereikbaarheid van uitvalswegen.
-Het betreft een voormalige huurwoning van Thuisvester, hierdoor bent u gebonden aan een projectnotaris;
-Verkoopvoorwaarden zijn van toepassing, in de koopakte zullen o.a. een zelfbewoningsplicht, anti- speculatiebeding, ouderdomsclausule en niet zelfbewoningsclausule worden opgenomen.
-Perceeloppervlak dient nog ingemeten te worden door kadaster. Oppervlakte van ca 150m²

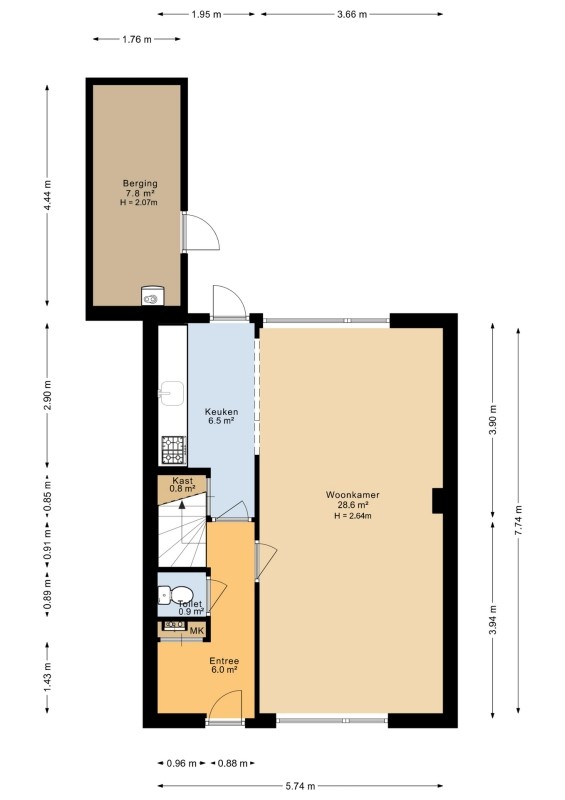
Indeling

Begane grond:

Entree/hal met laminaatvloer, meterkast, toiletruimte met fonteintje en trapopgang welke toegang geeft tot de eerste verdieping.

Woon/eetkamer afmeting circa 7.74 x 3.66 m, type doorzon met nette vloerafwerking en grote raampartijen aan de voor en achterzijde.
Half open keukenruimte afm. ca. 6.70m² met laminaatvloeren deur welkte toegang geeft tot de achtertuin. Het keukenblok is in een rechte opstelling geplaatst en beschikt over een spoelbak, 4 pits gaskookplaat, afzuigkap en diverse boven en onderkastjes.

Eerste Verdieping:

De overloop biedt toegang tot de vier slaapkamers en tot de badkamer. De badkamer is tot het plafond betegeld en voorzien van een wastafel en een inloopdouche. De eerste verdieping is vrijwel geheel voorzien van een laminaatvloer.

Slaapkamer 1: ca. 9.9 m² met laminaatvloer en grote raampartij.
Slaapkamer 2: ca. 10.5 m² met laminaatvloer en grote raampartij.
Slaapkamer 3: ca. 5.2 m²met laminaatvloer en grote raampartij.
Slaapkamer 4: ca. 5.5 m²met laminaatvloer en grote raampartij.

Tuin:

Diepe nog aan te leggen achtertuin welke is gelegen op het noord/ westen. De achtertuin beschikt over een berging welke is voorzien van elektra en hier bevindt zich de opstelplaats van de cv-ketel.
De achtertuin is middels een achterom bereikbaar.

Ligging:

Oosterhout is een gezellige en sfeervolle stad met een prachtig historisch stadshart de "Markt", de "Heuvel" en de geweldige stadsparken. De woning is nabij het winkelcentrum van Zuiderhout gelegen, doch op een rustige locatie op loopafstand van scholen, parken en sportfaciliteiten.
Daarnaast zijn ook de uitvalswegen snel en eenvoudig bereikbaar. Oosterhout heeft een gunstige ligging ten opzichte van de A27 (Utrecht-Breda), de A58 (Bergen op Zoom – Eindhoven) en de A59 (Zonzeel – ‘s-Hertogenbosch).
Hartje Breda is binnen een kwartier met de auto of met de bus te bereiken.
 
+ lees de volledige omschrijving

Overdracht

Vraagprijs
€ 325.000 kosten koper
Status
Verkocht

Bouw

Soort woonhuis
woning, eengezinswoning
Bouwjaar
1966
Soort bouw
bestaande bouw
Isolatie
volledig geïsoleerd

Indeling

Woonoppervlakte
89 m2
Inhoud
326 m3
Aantal kamers
5
Perceeloppervlakte
150 m2
Aantal woonlagen
2

Energie

Warm water
c.v.-ketel

Parkeergelegenheid

Garage
geen garage
 
Jacob Catslaan 34
4904 EM, OOSTERHOUT
Verkocht
€ 325.000 k.k.
Bouwjaar
1966
Inhoud
326 m3
Woonopp.
89 m2
Perceelopp.
150 m2
Kamers
5 kamers
 
 

Meer informatie over Jacob Catslaan 34, OOSTERHOUT