Ruime eindwoning met voor/ achtertuin, overkapping en uitgebouwde garage. De woning is goed onderhouden en beschikt over 3 slaapkamers op de eerste verdieping en een 4de op de tweede verdieping.

Kenmerken:

- De woning is voorzien van houten kozijnen met isolatieglas en groot en deels voorzien van rolluiken;
- De woning beschikt over energielabel B;
- Gunstige ligging ten opzichte van allerhande voorzieningen;
- De woning beschikt over 3 slaapkamers op de eerste verdieping en over een ruime zolder slaapkamer;
- De woning beschikt over een riante, uitgebouwde garage van circa 27m²;
- Op het dak van de garage zijn 8 zonnepanelen geïnstalleerd;
- Er voldoende parkeergelegenheid in de directe omgeving;
- Gelegen in "Dommelbergen", op loopafstand van winkelcentrum Arkendonk en diverse sportgelegenheden.

Indeling:

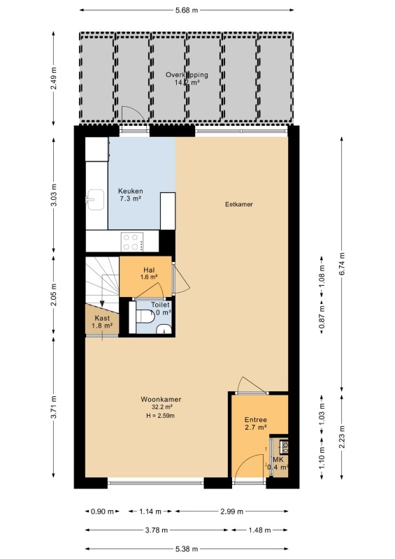
Begane grond;

De entree/ hal met meterkast, garderobe geeft toegang tot de woonkamer.
Woonkamer;
De woonkamer, type doorzon afm. ca. 9.00 x 5.40m beschikt over een tegelvloer, grote trapkast en aan de achterzijde over een groot raam met zicht naar de achtertuin. Via de eetkamer is de aan de achterzijde gelegen openkeuken te bereiken.
De openkeuken is voorzien van een nette keukeninrichting in U opstelling met diverse boven en onderkastjes en diverse inbouwapparatuur, te weten; inductie kookplaat, combi oven/ magnetron, RVS afzuigkap en vaatwasser. De keuken geeft middels de loopdeur toegang tot de achtertuin.
tussenportaal met trapopgang;
Tussenportaal met toiletruimte v.v. hangcloset en fonteintje, en trapopgang welke toegang geeft tot de eerste verdieping.

Tuin/Garage;
Onderhoudsvriendelijk aangelegde achtertuin welke is gelegen op het Oosten met aluminium overkapping, zonnescherm tegen de achtergevel van de woning en uitgebouwde garage welke is voorzien van elektra en een automatische deur. Middels de poort te bereiken brandgang.

Eerste verdieping;

Slaapkamer 1; Zeer riante ouderslaapkamer afm. ca. 4.78 x 3.00m met laminaatvloer.
Slaapkamer 2; Kinderslaapkamer, afmeting ca. 4.14 x 3.00m. met laminaatvloer.
Slaapkamer 3; afmeting 3.80 x 2.27m eveneens met laminaatvloer.
Badkamer; De geheel betegelde badkamer is voorzien van een douche, ligbad, wastafelmeubel, tweede hangcloset en designradiator.

Tweede verdieping;

De ruime overloop beschikt over een Velux dakraam, opstelplaats cv-ketel en plek voor wasmachine én droger. De overloop geeft toegang tot de zolderslaapkamer.

Zolderkamer; Slaapkamer 4, afm. 4.85 x 2.98m, met laminaatvloer, Velux dakraam met HR++ glas, en opbergruimte achter de knieschotten.

Ligging;

De woning is gunstig gelegen ten opzichte van winkelcentrum 'Arkendonk', (basis)scholen, sportaccommodaties, busverbindingen en diverse uitvalswegen. Tevens grenzend aan de rand van de polder/landerijen, met groenrijke wandel- en fietsroutes!
 
+ lees de volledige omschrijving

Overdracht

Vraagprijs
€ 425.000 kosten koper
Status
Beschikbaar

Bouw

Soort woonhuis
woning, eengezinswoning
Bouwjaar
1980
Soort bouw
bestaande bouw
Isolatie
dakisolatie, muurisolatie, vloerisolatie, dubbel glas

Indeling

Woonoppervlakte
122 m2
Inhoud
441 m3
Aantal kamers
5
Perceeloppervlakte
175 m2
Aantal woonlagen
3

Energie

Warm water
c.v.-ketel

Parkeergelegenheid

Garage
vrijstaand steen
 
Jan van Scorelstraat 7
4907 PJ, OOSTERHOUT
€ 425.000 k.k.
Bouwjaar
1980
Inhoud
441 m3
Woonopp.
122 m2
Perceelopp.
175 m2
Kamers
5 kamers
 
 

Meer informatie over Jan van Scorelstraat 7, OOSTERHOUT