Middenwoning in het centrum van Oosterhout op loopafstand van het winkelcentrum, stadsparken en scholen. De woning is over de volle breedte uitgebouwd en beschikt over een op het zuidwesten gelegen, ruime achtertuin en grote garage/werkruimte.

Kenmerken:

- Gewilde locatie nabij het stadscentrum van Oosterhout, op korte loopafstand van diverse winkels, openbare

voorzieningen en uitvalswegen;
- Goed onderhouden en karakteristieke tussenwoning met diepe tuin;
- Grote garage/werkruimte welke geschikt is voor meerdere auto’s. Voorzien van elektra, elektrische roldeur en loopdeur;
- De woning is gedeeltelijk voorzien van rolluiken;
- De woning is instapklaar;
- Oplevering in overleg.

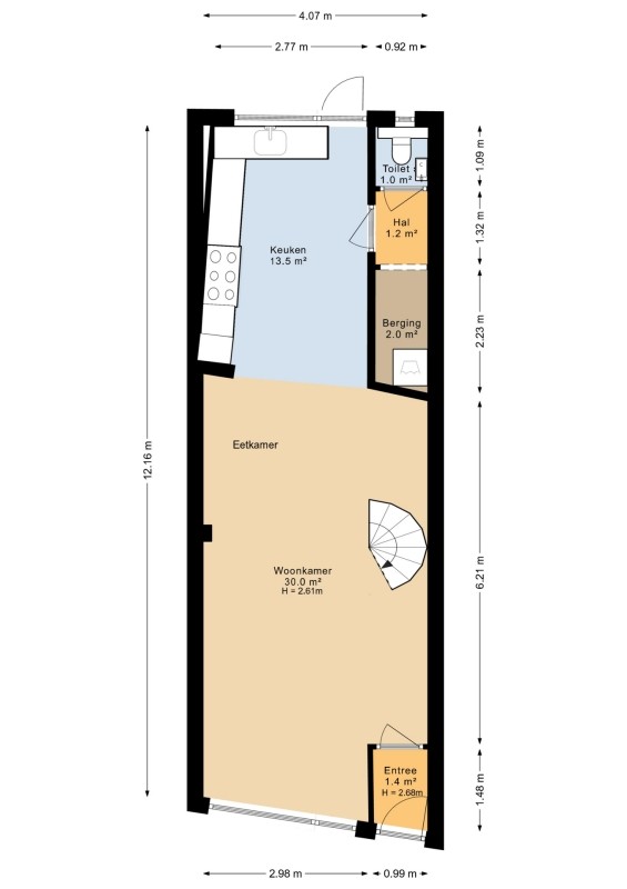
Begane Grond:

Entree/ hal. De hal is voorzien van vloerbedekking en geeft toegang tot de woonkamer..

Woonkamer (ca. 7.70m x 4.00m) met fraaie laminaatvloer, inbouwspots, gestuukte wandafwerking en schuurwerk plafonds. De speeltrap geeft toegang tot de eerste verdieping.

Aan de achterzijde van de woning bevindt zich de open woonkeuken. Deze is voorzien van een Grohe Red kokend waterkraan met 4-liter boiler, 5-pits gaskooktoestel met oven, koelkast en vriezer, RVS afzuigkap en vaatwasser. Zowel de woonkamer als keuken zijn voorzien van dimbare spots.
Vanuit de keuken is tevens de badkamer met douche, wastafel en toilet bereikbaar. Het toilet en de wasruimte zijn voorzien van mechanische ventilatie.

Tuin:

De diepe achtertuin is volledig bestraat en op het zuidwesten gelegen. Achter op het perceel staat de garage welke geschikt is voor meerdere auto’s. De garage (4.40m x 9.00m) is momenteel in gebruik als garage/werkplaats.

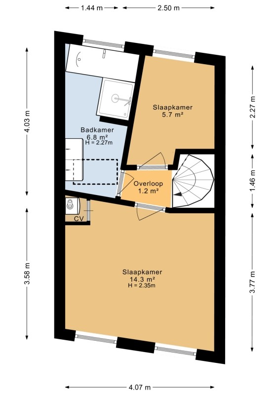
Eerste Verdieping:

Vanaf de overloop zijn de twee slaapkamers alsmede de badkamer bereikbaar.
Grote slaapkamer (4.20m x 3.50m) gelegen aan de voorzijde gelegen en voorzien van een op maat gemaakte inbouwkast;
Slaapkamer gelegen aan de achterzijde afm. c.a. 2.90m x 2.00m;

Ligging:

Wonen in Oosterhout staat voor wonen in een sfeervolle stad met de "Markt" en de "Heuvel" als historisch stadshart.

De Keiweg in Oosterhout is een karakteristieke straat nabij het centrum van de stad. Het is een relatief korte, maar sfeervolle straat met historische panden. Door de ligging nabij het winkelgebied en horeca in het centrum, is het een aantrekkelijke locatie voor zowel bewoners als bezoekers.Zowel met de auto als per fiets of openbaar vervoer is de locatie goed te bereiken.

Oosterhout heeft een gunstige ligging ten opzichte van de A27, de A58 en de A59. Hartje Breda is binnen een kwartier (met de bus) bereikbaar.
 
+ lees de volledige omschrijving

Overdracht

Vraagprijs
€ 339.000 kosten koper
Status
Verkocht

Bouw

Soort woonhuis
woning, eengezinswoning
Bouwjaar
1935
Soort bouw
bestaande bouw
Isolatie
dubbel glas

Indeling

Woonoppervlakte
82 m2
Inhoud
290 m3
Aantal kamers
3
Perceeloppervlakte
160 m2
Aantal woonlagen
2

Energie

Warm water
c.v.-ketel

Parkeergelegenheid

Garage
vrijstaand steen
 
Keiweg 130
4902 PE, OOSTERHOUT
Verkocht
€ 339.000 k.k.
Bouwjaar
1935
Inhoud
290 m3
Woonopp.
82 m2
Perceelopp.
160 m2
Kamers
3 kamers
 
 

Meer informatie over Keiweg 130, OOSTERHOUT