Middenwoning in het centrum van Oosterhout op loopafstand van het winkelcentrum, stadsparken en scholen. De woning is over de volle breedte uitgebouwd en beschikt over een op het zuidwesten gelegen, ruime achtertuin en grote garage/werkruimte.

Kenmerken:

- Gewilde locatie nabij het stadscentrum van Oosterhout, op korte loopafstand van diverse winkels, openbare

voorzieningen en uitvalswegen;
- Energielabel C;
- Goed onderhouden en karakteristieke tussenwoning met diepe tuin;
- Grote garage/werkruimte van 29 m² welke geschikt is voor meerdere auto’s. Voorzien van elektra;
- De woning is vrijwel geheel voorzien van dubbelglas;
- 3 slaapkamers op de eerste verdieping;
- Oplevering in overleg, korte termijn bespreekbaar;

Begane Grond:

Entree/ hal. De hal is voorzien van een laminaatvloer en geeft toegang tot de woonkamer..

Woonkamer (ca. 5.95m x 4.00m) met fraaie laminaatvloer, inbouwspots, gestuukte wandafwerking en sfeervolle openhaard. De trap geeft toegang tot de eerste verdieping.

Aan de achterzijde gesitueerde open woonkeuken welke is voorzien van een nette keukeninrichting v.v. diverse inbouwapparatuur, te weten; oven, gaskookplaat, koelkast en RVS afzuigkap. Zowel de woonkamer als keuken zijn voorzien van inbouwspots
Vanuit de keuken is tevens de badkamer met douche, wastafel en separaat toilet bereikbaar. De grote schuifpui geeft toegang tot de achtertuin.

Tuin:

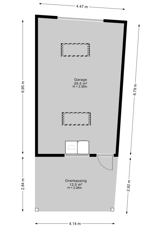
De diepe achtertuin is keurig aangelegd en op het zuidwesten gelegen. Achter op het perceel staat de garage welke geschikt is voor meerdere auto’s. De garage (4.47m x 6.95/ 6.80m) is momenteel in gebruik als garage/werkplaats.

Eerste Verdieping:

Vanaf de overloop zijn de drie slaapkamers bereikbaar.
Grote slaapkamer (3.46m x 4.10m) gelegen aan de voorzijde en voorzien van tuimelramen.
Slaapkamer gelegen aan de achterzijde afm. c.a. 3.75m x 2.00m;
Slaapkamer gelegen aan de achterzijde afm. c.a. 3.10m x 2.00m;

Ligging:

Wonen in Oosterhout staat voor wonen in een sfeervolle stad met de "Markt" en de "Heuvel" als historisch stadshart.

De Keiweg in Oosterhout is een karakteristieke straat nabij het centrum van de stad. Het is een relatief korte, maar sfeervolle straat met historische panden. Door de ligging nabij het winkelgebied en horeca in het centrum, is het een aantrekkelijke locatie voor zowel bewoners als bezoekers.Zowel met de auto als per fiets of openbaar vervoer is de locatie goed te bereiken.

Oosterhout heeft een gunstige ligging ten opzichte van de A27, de A58 en de A59. Hartje Breda is binnen een kwartier (met de bus) bereikbaar.
 
+ lees de volledige omschrijving

Overdracht

Vraagprijs
€ 345.000 kosten koper
Status
Verkocht

Bouw

Soort woonhuis
woning, eengezinswoning
Bouwjaar
1935
Soort bouw
bestaande bouw
Isolatie
dakisolatie, dubbel glas

Indeling

Woonoppervlakte
80 m2
Inhoud
291 m3
Aantal kamers
5
Perceeloppervlakte
150 m2
Aantal woonlagen
3

Energie

Warm water
c.v.-ketel

Parkeergelegenheid

Garage
vrijstaand steen
 
Keiweg 132
4902 PE, OOSTERHOUT
Verkocht
€ 345.000 k.k.
Bouwjaar
1935
Inhoud
291 m3
Woonopp.
80 m2
Perceelopp.
150 m2
Kamers
5 kamers
 
 

Meer informatie over Keiweg 132, OOSTERHOUT