Op geliefde locatie in de wijk Oud West, nabij het centrum van Oosterhout, gelegen royale en karakteristieke bovenwoning met een ruim woonoppervlakte. Deze woning is gesitueerd op de bovenste woonlaag van een pand uit de periode 1931–1944 en combineert authentieke details met moderne woonruimte.

Kenmerken:

- Op een royaal hoekperceel gelegen zeer ruime bovenwoning;
- Gemoderniseerd appartement gelegen op de eerste verdieping;
- Ruim balkon met vrij zicht;
- Beschikt over een royale vliering, bereikbaar via een vlizotrap;
- Voorzien van energielabel A en volledig aangepast aan de eisen van deze tijd;
- Ligging op loopafstand van het centrum van Oosterhout;
- In de koopovereenkomst zal een niet-bewonings- en ouderdomsclausule worden opgenomen.
- In de directe omgeving is voldoende parkeergelegenheid aanwezig.

Indeling:

Entree:
De woning is toegankelijk via een separate entree die toegang geeft tot het appartement. Via deze entree bereikt u middels de trapopgang het appartement, waarbij de ontsluiting overzichtelijk en praktisch is ingericht.

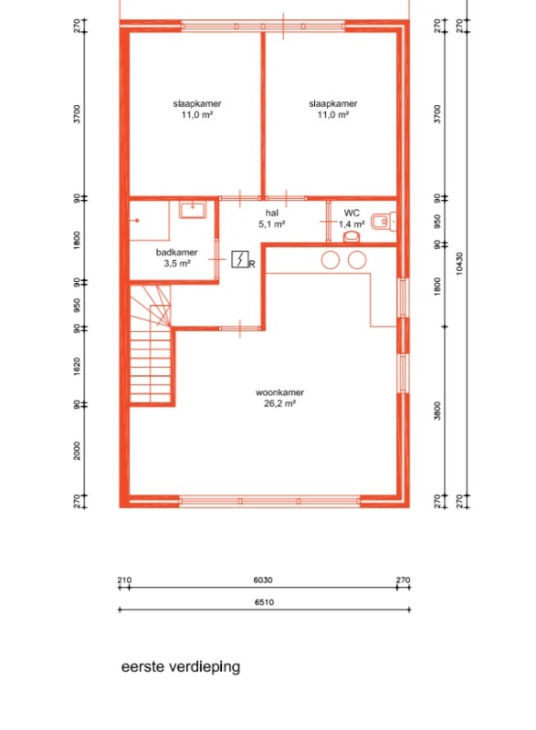
1e Verdieping:
Volledig gemoderniseerd en verduurzaamd appartement en dankzij meerdere raampartijen verrassend licht. Het appartement beschikt over een royale woonkamer, wat zorgt voor een open en prettige leefruimte.

In de woonkamer bevindt zich de open keuken, uitgerust met een combi-oven, inductiekookplaat en afzuigkap. Verder zijn er twee volwaardige slaapkamers, separate toilet en een nette, praktisch ingedeelde badkamer met alle benodigde voorzieningen.

Aan de achterzijde van het appartement ligt een dakterras van circa 8 m² gelegen ten noorden, een fijne plek om te ontspannen met vrij uitzicht over de omgeving.

Vliering:
Middels een vlizotrap is de royale vliering bereikbaar, welke uitstekend geschikt is als extra bergruimte.

Ligging:
De ligging is ideaal: rustig, kindvriendelijk, met een groen plantsoen en speelvoorzieningen op steenworp afstand, en toch op loopafstand van het levendige stadscentrum van Oosterhout.
 
+ lees de volledige omschrijving

Overdracht

Vraagprijs
€ 275.000 kosten koper
Status
Onder bod

Bouw

Soort woonhuis
appartement, bovenwoning
Bouwjaar
1931-1944
Soort bouw
bestaande bouw

Indeling

Woonoppervlakte
65 m2
Inhoud
219 m3
Aantal kamers
3
Perceeloppervlakte
- m2
Aantal woonlagen
2

Energie

Warm water
c.v.-ketel

Parkeergelegenheid

Garage
geen garage
 
Koningsdijk 10 A
4905 AP, OOSTERHOUT
Onder bod
€ 275.000 k.k.
Bouwjaar
1931-1944
Inhoud
219 m3
Woonopp.
65 m2
Perceelopp.
m2
Kamers
3 kamers
 
 

Meer informatie over Koningsdijk 10 A, OOSTERHOUT