In Oosterhout-Zuid gelegen eindwoning met voor- en achtertuin, stenen berging en achterom. De ligging in Oosterhout-Zuid is centraal nabij de uitvalswegen, busverbinding en de bossen. De woning is zeer netjes onderhouden maar behoeft modernisering.

De ligging is bijzonder centraal op loopafstand van winkelcentrum "Zuiderhout", basis- en voortgezet onderwijs, sportaccommodaties waaronder voetbal, hockey, tennis, atletiek en zwembad "de Warande".

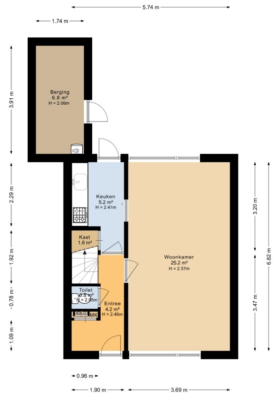
Begane Grond:

Entree/hal met tegelvloer, meterkast, toiletruimte met fonteintje en trapopgang welke toegang geeft tot de eerste verdieping.

Woon/eetkamer afmeting circa 6.79 x 3.69 m, type doorzon met laminaatvloer en grote raampartijen aan de voor en achterzijde.
Dichte keukenruimte afm. ca. 5.5m² met tegelvloer en deur welkte toegang geeft tot de achtertuin. Het keukenblok is in een rechte opstelling geplaatst en beschikt over een spoelbak en diverse boven en onderkastjes.

Tuin:

Diepe achtertuin met grasveld en borders v.v. beplanting welke is gelegen op het zuid/ oosten. De achtertuin beschikt over een berging welke is voorzien van elektra en alhier bevindt zich de opstelplaats cv-ketel.
De achtertuin is middels een brede poort bereikbaar.

Eerste Verdieping:

De overloop biedt toegang tot de drie slaapkamers en tot de badkamer. De badkamer is tot het plafond betegeld en voorzien van een wastafel en een inloopdouche. De eerste verdieping is vrijwel geheel voorzien van een laminaatvloer.

Slaapkamer 1: ca. 12 m² met laminaatvloer en grote raampartij.
Slaapkamer 2: ca. 4.6 m² met laminaatvloer en grote raampartij.
Slaapkamer 3: ca. 12.4 m²met laminaatvloer en grote raampartij.

Kenmerken:

- De woning is voorzien van energielabel B;
- Het betreft een uiterst energiezuinige woning v.v. recent vernieuwde kozijnen en gevelisolatie/ bekleding;
- Nette woning met achtertuin v.v. berging en 3 slaapkamers;
- Indien er meerdere kandidaten zijn, zal het woonhuis middels een loting verzorgd door de notaris. verkocht worden.

De vraagprijs zal als transactieprijs aangehouden worden. Huurders die een sociale huurwoning van Thuisvester in de

gemeente Oosterhout achterlaten krijgen voorrang.

- Rustige locatie op loopafstand van winkelcentrum zuiderhout, met uitstekende bereikbaarheid van uitvalswegen.
- Het betreft een voormalige huurwoning van Thuisvester, hierdoor bent u gebonden aan een projectnotaris;
- Verkoopvoorwaarden zijn van toepassing, in de koopakte zullen o.a. een zelfbewoningsplicht, anti- speculatiebeding,

ouderdomsclausule en niet zelfbewoningsclausule worden opgenomen.
 
+ lees de volledige omschrijving

Overdracht

Vraagprijs
€ 309.000 kosten koper
Status
Verkocht

Bouw

Soort woonhuis
woning, eengezinswoning
Bouwjaar
1966
Soort bouw
bestaande bouw
Isolatie
volledig geïsoleerd

Indeling

Woonoppervlakte
78 m2
Inhoud
299 m3
Aantal kamers
4
Perceeloppervlakte
176 m2
Aantal woonlagen
2

Energie

Warm water
c.v.-ketel

Parkeergelegenheid

Garage
geen garage
 
Melis Stokelaan 19
4904 ED, OOSTERHOUT
Verkocht
€ 309.000 k.k.
Bouwjaar
1966
Inhoud
299 m3
Woonopp.
78 m2
Perceelopp.
176 m2
Kamers
4 kamers
 
 

Meer informatie over Melis Stokelaan 19, OOSTERHOUT