Aan de rand van het centrum van Oosterhout gelegen, royaal woonhuis, type tussenwoning met voor- en achtertuin, berging over de volle breedte en achterom. Leuke gezinswoning met 4 slaapkamers.

Kenmerken:

- De woning is voorzien van energielabel D;
- Het betreft een uiterst ruime woning v.v. houten/ aluminium kozijnen;
- Ruime woning met achtertuin v.v. berging en 4 slaapkamers;
- Indien er meerdere kandidaten zijn, zal het woonhuis middels een loting verzorgd door de notaris. verkocht worden. - De vraagprijs zal als transactieprijs aangehouden worden. Huurders die een sociale huurwoning van Thuisvester in de gemeente Oosterhout achterlaten krijgen voorrang.

- Rustige locatie op korte afstand van winkelcentrum Arendshof, met uitstekende bereikbaarheid van uitvalswegen.
- Het betreft een voormalige huurwoning van Thuisvester, hierdoor bent u gebonden aan een projectnotaris;
- Verkoopvoorwaarden zijn van toepassing, in de koopakte zullen o.a. een zelfbewoningsplicht, anti- speculatiebeding, ouderdomsclausule en niet zelfbewoningsclausule worden opgenomen.

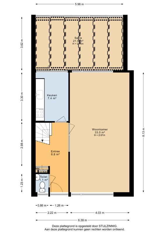
Begane Grond:

Entree/hal met, meterkast, toiletruimte met fonteintje en trapopgang welke toegang geeft tot de eerste verdieping.

Woon/eetkamer afmeting circa 8.13 x 4.03 m, type doorzon met tegelvloer en grote raampartijen aan de voor en achterzijde.

Dichte keukenruimte afm. ca. 3.31 x 2.17m. met tegelvloer en deur welkte toegang geeft tot de serre/ tot de achtertuin.
De kunststof serre afm. ca. 3.62 x 5.96m beschikt over een schuifpui welke toegang geeft tot de achtertuin.

Tuin:

Omsloten tuin met borders en grasveld. Berging over de volle breedte van de tuin. Het pand is voorzien van een achterom door de berging.

Eerste Verdieping:

Vanaf de overloop zijn de drie ruime slaapkamers, de vaste trap naar de tweede verdieping alsmede de badkamer bereikbaar.

• Slaapkamer1 aan de voorzijde gelegen afm. ca. 3.72 x 4.03 m.
• Slaapkamer2 aan de achterzijde gelegen afm. ca. 4.34 x 4.03 m.
• Slaapkamer3 aan de achterzijde gelegen afm. ca. 3.30 x 2.23m.

De betegelde badkamer is voorzien van een vaste wastafel, douche en tweede toilet.

Tweede Verdieping:

Middels vaste trap toegang tot de voorzolder met voldoende bergruimte en aparte ruimte ten behoeve van de combiketel.
Volwaardige slaapkamer afmeting circa 4.12 x 4.00 m. met Velux dakraam.

Ligging:

Oosterhout is een gezellige en sfeervolle stad met een prachtig historisch stadshart de "Markt", de "Heuvel" en de geweldige stadsparken.

De woning is op korte fietsafstand van winkelcentrum van Arendshof gelegen, doch op een rustige locatie op loopafstand van scholen, parken en sportfaciliteiten.
Daarnaast zijn ook de uitvalswegen snel en eenvoudig bereikbaar. Oosterhout heeft een gunstige ligging ten opzichte van de A27 (Utrecht-Breda), de A58 (Bergen op Zoom – Eindhoven) en de A59 (Zonzeel – ‘s-Hertogenbosch).
Hartje Breda is binnen een kwartier met de auto of met de bus te bereiken.
 
+ lees de volledige omschrijving

Overdracht

Vraagprijs
€ 335.000 kosten koper
Status
Beschikbaar

Bouw

Soort woonhuis
woning, eengezinswoning
Bouwjaar
1970
Soort bouw
bestaande bouw

Indeling

Woonoppervlakte
131 m2
Inhoud
465 m3
Aantal kamers
5
Perceeloppervlakte
170 m2
Aantal woonlagen
3

Energie

Parkeergelegenheid

Garage
geen garage
 
Nachtegaalstraat 25
4901 BL, OOSTERHOUT
€ 335.000 k.k.
Bouwjaar
1970
Inhoud
465 m3
Woonopp.
131 m2
Perceelopp.
170 m2
Kamers
5 kamers
 
 

Meer informatie over Nachtegaalstraat 25, OOSTERHOUT