In het gezellige kerkdorp "Oosteind" gelegen woonhuis met omsloten, leuke tuin, berging en achterom. Het pand is gelegen op het terrein van de voormalige melkfabriek "De Eendracht", op de hoek van de Provincialeweg en de Rijsdijk. De ligging is zeer gunstig t.o.v. o.a. een basisschool, sportvelden en diverse uitvalswegen.

Kenmerken:

-De woning is optimaal geïsoleerd ( Energielabel A );
-8 zonnepanelen;
-3 fasen meterkast;

-De buitenkozijnen, ramen en deuren zijn uitgevoerd in kunststof en voorzien van isolerende beglazing;
-Het betreft een zeer jonge, instapklare woning.

De indeling is als volgt:

Begane grond:

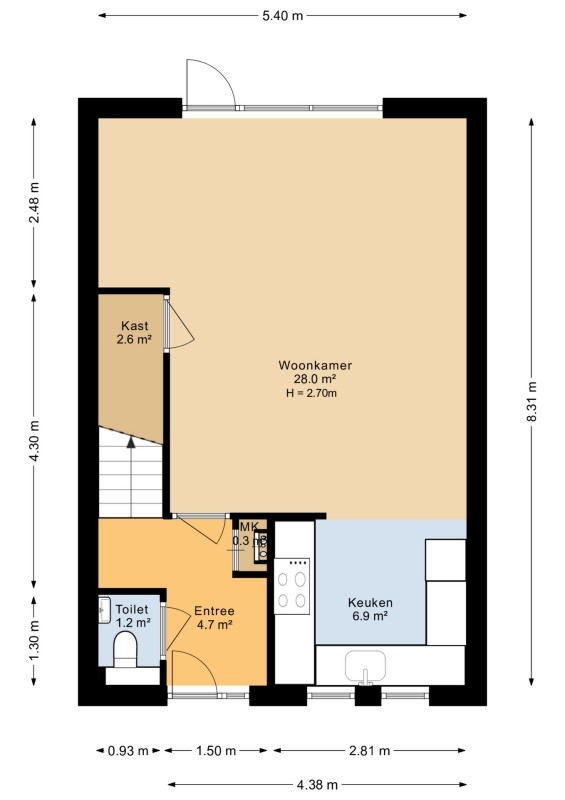
Entree/hal met plavuizen vloer, meterkast ( 3 fasen ), trapopgang naar de eerste verdieping en modern toilet met fonteintje uitgevoerd met Italiaans stucwerk wanden.
De L vormige woonkamer ca. 30m² is voorzien van grotendeels Italiaans stucwerk wanden, een plavuizen vloer, trapkast en geeft middels de openslaande deur toegang tot de achtertuin en de aan de voorzijde gesitueerde half open keuken.
De keuken is voorzien van een moderne U-vormige hoogglans keukeninrichting met diverse inbouwapparatuur te weten: fornuis met inductie kookplaat en oven, afzuigkap, koelkast, vaatwasmachine en meer dan voldoende bergruimte. De gehele woning is voorzien van stucwerk wanden.

De achtertuin:

Op het noorden gelegen achtertuin met achterom (afmeting circa 8.50m. diep en 5.50m. breed), sierbestrating en houtenberging welke is voorzien van elektriciteit.

Eerste verdieping:

Vanaf de overloop met Italiaans stucwerk wanden zijn de drie slaapkamers, alsmede de badkamer bereikbaar. De gehele eerste verdieping is voorzien van een fraaie laminaatvloer (m.u.v. de badkamer).

Voorslaapkamer afm. ca. 4.13 x 2.96m.
Achter-slaapkamer afm. ca. 4.11 x 2.96m.
Achter-slaapkamer afm. ca. 2.13 x 2.52m.
Met Italiaans stucwerk uitgevoerde badkamer met inloopdouche, dubbele vaste wastafel, wandcloset en designradiator.

Tweede verdieping:

Middels vaste trap toegang tot de open hobby/bergzolder voorzien van laminaatvloer. Voorts treft u hier de opstelplaats van de c.v.-combiketel (Intergas HR, 2010) aan alsmede de unit van de mechanische afzuiging en de aansluiting ten behoeve van de wasautomaat.. Middels luik toegang tot bergzolder.
Mogelijkheid tot het creëren van een 4e slaapkamer.

Ligging:

Oosteind, is een lintdorp behorend tot de gemeente Oosterhout. Het dorp ligt gunstig t.o.v. de A27 (Utrecht–Breda), de A58 (Bergen op Zoom–Eindhoven) en A59 (Zonzeel–’s-Hertogenbosch). Binnen een kwartier staat u in het centrum van het gezellige Breda met al haar voorzieningen, maar nog sneller bent u in het centrum van Oosterhout waar eveneens uitstekende winkelvoorzieningen zoals het overdekte Arendshof zijn, alsmede vele sport- en recreatievoorzieningen en diverse horecagelegenheden. Zowel Oosteind als Oosterhout kennen een behoorlijk rijk sociaal verenigingsleven.
 
+ lees de volledige omschrijving

Overdracht

Vraagprijs
€ 375.000 kosten koper
Status
Verkocht

Bouw

Soort woonhuis
woning, eengezinswoning
Bouwjaar
2011
Soort bouw
bestaande bouw
Isolatie
volledig geïsoleerd

Indeling

Woonoppervlakte
90 m2
Inhoud
388 m3
Aantal kamers
5
Perceeloppervlakte
118 m2
Aantal woonlagen
3

Energie

Warm water
c.v.-ketel

Parkeergelegenheid

Garage
geen garage
 
Provincialeweg 153 A
4909 AH, OOSTEIND
Verkocht
€ 375.000 k.k.
Bouwjaar
2011
Inhoud
388 m3
Woonopp.
90 m2
Perceelopp.
118 m2
Kamers
5 kamers
 
 

Meer informatie over Provincialeweg 153 A, OOSTEIND