Op uitstekende locatie, midden in het centrum gelegen uitgebouwde middenwoning met 4 slaapkamers, luxe badkamer en achtertuin v.v. houten berging en achterom.

Kenmerken:
-Energielabel A;
-De woning is volledig geïsoleerd;
-HR++ beglazing;
-Begane grond en badkamer is voorzien van vloerverwarming;
-Strak gestucte wanden en plafonds;
-De begane grond is v.v. een PVCvloer en de verdiepingen v.v. laminaatvloer;
-Airco op ouderslaapkamer 2e verdieping;
-Ruime woning met maar liefst 4 slaapkamers;
-Goed onderhouden en energiezuinige woning met 3 zonnepanelen;
-Voldoende parkeergelegenheid (vergunninghouders);
-Gelegen in hartje centrum.

Indeling:
Begane grond:
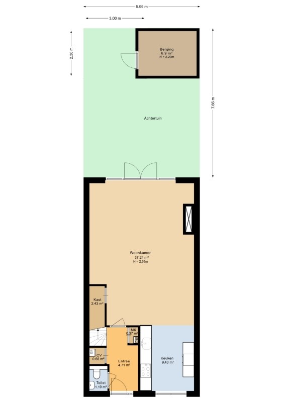
Entree, hal met toegang tot het modern toilet deze is half betegeld en v.v. hangend closet en fonteintje. Tevens heeft u vanuit de hal toegang tot de meterkast, trapopgang naar de 1e verdieping en de opstelplaats van de CV-ruimte.
De tuingerichte woonkamer, afmeting ca. 7.07 x 5.39 m., is voorzien van een PVCvloer met vloerverwarming, fraaie bio-ethanol haard met strakke schouw, vaste kast en openslaande deuren die toegang geven tot de achtertuin.
Aan de voorzijde gelegen open keuken, afmeting ca. 3.35 x 2.78 m., welke is uitgerust met een recht keukenblok met diverse AEG inbouwapparatuur te weten; 4 pits inductiekookplaat met afzuiging, AEG-Quooker en vaatwasser. Kastenwand v.v. combi- oven/ magnetron, oven, koel/vries combinatie en ruim voldoende kastruimte.

1e Verdieping:
Vanaf de overloop zijn 3 slaapkamers, de badkamer alsmede de vaste trap naar de 2e verdieping bereikbaar. De gehele 1e verdieping is v.v. een laminaatvloer.
Slaapkamer 1, voorzijde, afmeting ca. 3.54 x 2.92 m., met openslaande deuren met Frans balkon en draai/kiepramen.
Slaapkamer 2, achterzijde, afmeting ca. 4.44 x 3.19 m., met draai/kiepramen, thans ingebruik als walk in closet.
Slaapkamer 3, achterzijde, afmeting ca. 2.70 x 2.37 m, met draai/kiepramen.
Tot het plafond betegelde badkamer met inloopdouche v.v. regendouche, wastafel met meubel, infrarood verwarming/handdoekdroger en tweede hangcloset.

2e Verdieping:
Middels vaste trap toegang tot de voorzolder met aansluiting t.b.v. de wasapparatuur. Deze verdieping is eveneens v.v. een laminaatvloer.
Op de deze verdieping bevindt zich de ouderslaapkamer v.v. draai/kiep raam met Frans balkon en dakraam. Deze verdieping is eveneens v.v. een laminaatvloer.

Tuin:
Verzorgde, op het noorden gelegen, tuin voorzien van grote antraciet tegels en kunstgras. Groot terras waar u makkelijk een grote tuintafel kan plaatsen en aan de achterzijde van de tuin bevindt zich de berging. Tevens is er een achterom aanwezig. De helft van de achter de tuin gelegen brandgang is eigendom van de woning.

Ligging:
De ligging is op loopafstand van het gezellige centrum met zijn winkels, vele restaurants op- en rondom "de Markt" en uitgaansgelegenheden.
Daarnaast zijn ook de uitvalswegen snel en eenvoudig bereikbaar. Oosterhout heeft een gunstige ligging ten opzichte van de A27 (Utrecht-Breda), de A58 (Bergen op Zoom – Eindhoven) en de A59 (Zonzeel – ‘s-Hertogenbosch).
Hartje Breda is binnen een kwartier met de auto of met de bus te bereiken.
 
+ lees de volledige omschrijving

Overdracht

Vraagprijs
€ 515.000 kosten koper
Status
Verkocht

Bouw

Soort woonhuis
woning, eengezinswoning
Bouwjaar
2020
Soort bouw
bestaande bouw
Isolatie
volledig geïsoleerd

Indeling

Woonoppervlakte
131 m2
Inhoud
466 m3
Aantal kamers
5
Perceeloppervlakte
110 m2
Aantal woonlagen
3

Energie

Warm water
c.v.-ketel

Parkeergelegenheid

Garage
geen garage
 
Santrijnhof 16
4901 EX, OOSTERHOUT
Verkocht
€ 515.000 k.k.
Bouwjaar
2020
Inhoud
466 m3
Woonopp.
131 m2
Perceelopp.
110 m2
Kamers
5 kamers
 
 

Meer informatie over Santrijnhof 16, OOSTERHOUT