In de populaire en kindvriendelijke woonwijk “Slotjes West” gelegen, ruime twee onder een kapwoning, op groot perceel, (290 m²) met voor,- en achtertuin op het westen, garage en achterom. De woning beschikt over een oprit welke geschikt is voor meerdere auto's.

De woning is op steenworpafstand van (basis)scholen, het gezellige winkelcentrum Arendshof, eeuwenoude stadsparken, de Markt, supermarkten en openbaar vervoer gelegen. Ook de uitvalswegen A27/ A59 en A16 zijn op korte afstand gelegen.

Kenmerken:

- Op top locatie in de zeer gewilde wijk "Slotjes" gelegen.
- (Basis)scholen op zeer korte afstand gelegen.
- De woning beschikt over 4 slaapkamers, grote badkamer en vaste trap naar de tweede verdieping.
- Prachtige achtertuin met veel privacy welke is gelegen op het westen.
- De woning is voorzien van een grote garage en berging.
- De woning is keurig onderhouden, doch behoeft modernisering.
- Oplevering in overleg.

Begane Grond:

Entree / hal met garderobe, lambrisering, leistenenvloer, meterkast, toiletruimte v.v. fonteintje, trapopgang naar de eerste verdieping en toegang naar de woonkamer.

De riante woonkamer in L opstelling afm. ca. 6.63 x 3.58 m beschikt over zeer veel lichtinval door de grote raampartijen. De woonkamer is v.v. een parketvloer en openhaard.

Aan de achterzijde, in de aanbouw georiënteerde keukenruimte welke beschikt over een nette keukeninrichting, in L- vorm met houten werkblad en diverse inbouwapparatuur, te weten: koelkast, diepvries, oven, 4 pits keramische kookplaat, afzuigkap en spoelbak. De woonkamer en de keuken worden gescheiden door een schuifdeur. De keuken beschikt over voldoende kastruimte en vanuit de keuken is de achtertuin te bereiken.

Tuin:

De achtertuin is op het westen gesitueerd en is uitstekend onderhouden met o.a. verschillende terrassen, een grasveld, gezellige overkapping en borders met verschillende beplanting.
Naast de woning treft men de garage v.v. elektra en loopdeur welke toegang geeft tot de oprit.
Voorts te bereiken extra berging met opstelplaats CV- ketel.

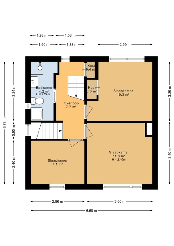
Eerste Verdieping:

Ruime overloop welke toegang geeft tot de 3 slaapkamers, de badkamer en vaste trapopgang naar de tweede verdieping. Vrijwel de gehele eerste verdieping.

Slaapkamer 1.aan de voorzijde van de woning, heeft een afmeting van ca. 3.60 x 3.40m.
Slaapkamer 2, eveneens aan de voorzijde van de woning, heeft een afmeting van ca. 2.40 x 2.96m.
Slaapkamer 3, aan de achterzijde van de woning, heeft een afmeting van ca. 3.26 x 2.99m.

Aan de zijkant gelegen badkamer met inloopdouche, tweede toilet en opstelplaats wasmachine droger.

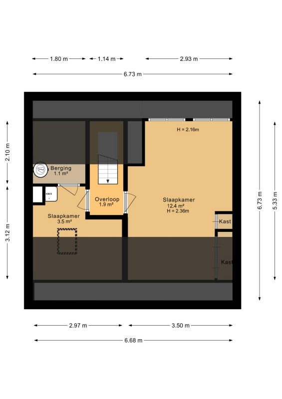
Tweede Verdieping:

Middels de vaste trap te bereiken ruime voorzolder met werkruimte, en met deur afgesloten bergruimte. De ruime zolderkamer, afmeting ca. 12m² beschikt over een vaste kastenwand, huurboiler en een dakkapel aan de achterzijde.
 
+ lees de volledige omschrijving

Overdracht

Vraagprijs
€ 499.000 kosten koper
Status
Verkocht

Bouw

Soort woonhuis
woning, eengezinswoning
Bouwjaar
1961
Soort bouw
bestaande bouw
Isolatie
gedeeltelijk dubbel glas

Indeling

Woonoppervlakte
120 m2
Inhoud
487 m3
Aantal kamers
5
Perceeloppervlakte
290 m2
Aantal woonlagen
3

Energie

Warm water
elektrische boiler huur

Parkeergelegenheid

Garage
aangebouwd steen
 
Statenlaan 12
4902 AL, OOSTERHOUT
Verkocht
€ 499.000 k.k.
Bouwjaar
1961
Inhoud
487 m3
Woonopp.
120 m2
Perceelopp.
290 m2
Kamers
5 kamers
 
 

Meer informatie over Statenlaan 12, OOSTERHOUT