In gewilde kruidenbuurt, op rustige locatie gelegen ruime en goed onderhouden helft van een twee onder een kapwoning met uitgebouwde eetkamer, garage, carport, royale oprit voor 2 auto’s en fraai aangelegde tuin gesitueerd op het oosten met royaal terras uitgevoerd in hardhouten vlonders.

Kenmerken:
-Energielabel B.
-De gehele woning is voorzien van dubbelglas, op de eerste verdieping zijn de kozijnen uitgevoerd in kunststof met draai/kiep systeem.
-De gehele achterzijde van de woning is voorzien van kunststof kozijnen, de voorzijde en zijkant van houten kozijnen welke in 2024 zijn geschilderd.
-De woning beschikt over een oprit welke geschikt is voor meerdere auto’s.
-Aan de achterzijde uitgebouwde eetkamer met openslaande tuindeuren en twee grote Velux ramen.
-De woning is rustig gelegen in de "Kruidenbuurt" in "Dommelbergen", nabij winkelcentrum Arkendonk, diverse uitvalswegen, scholen en sportgelegenheden.
-Kortom, een ruime gezinswoning!
-Oplevering in overleg.

Indeling:
Begane grond:
Via de overdekte entree betreedt u deze woning. In de hal bevinden zich de meterkast en de geheel betegelde toiletruimte v.v. hangend toilet met fonteintje. Vanuit de entree heeft u toegang tot de woonkamer.

De ruime doorzon woonkamer, afmeting ca. 12.60 x 6.08/3.68m, met gietvloer is opgedeeld in een ruim zitgedeelte aan de voorzijde en een in de uitbouw gelegen eetkamer welke is voorzien van openslaande tuindeuren en 2 Velux ramen. Vanuit de woonkamer heeft u toegang middels de vernieuwde trap tot de eerste verdieping.

De openkeuken is gelegen aan de achterzijde van de woning en is voorzien van een U-vormig keukenblok uitgerust met een 5 pits gaskookplaat, RVS afzuigkap, elektrische oven, combi oven/ magnetron, koelkast en vaatwasser en ruim voldoende boven en onder kastruimte.

Vanuit de keuken is de bijkeuken bereikbaar welke is voorzien van een vaste kast en opstelplaats wasmachine/ droger. De bijkeuken geeft middels de loopdeur toegang tot de garage.De garage is toegankelijk vanuit de bijkeuken als vanuit de tuin en beschikt over elektra en openslaande deuren/ loopdeur. De garage geeft toegang tot de carport en de oprit welke geschikt is voor meerdere auto’s.

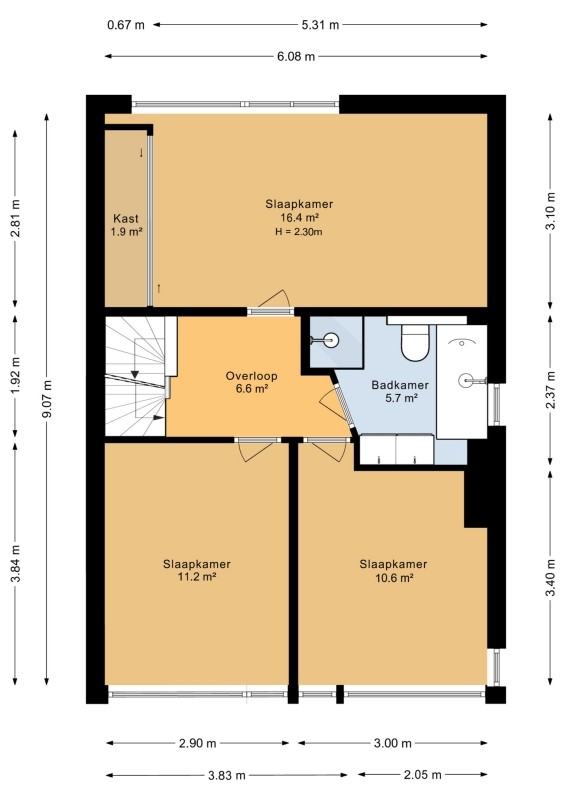
1e Verdieping:
De overloop geeft toegang tot de badkamer, drie slaapkamers en vaste trapopgang naar de tweede verdieping.

Ouderslaapkamer achterzijde, afmeting ca. 16.4m² , is voorzien van een laminaatvloer en kunststof draai/kiepramen.
Slaapkamer. afm. ca. 10.6 m² welke aan de voorzijde is gelegen.
Slaapkamer. Afm. ca. 11.2m² m welke eveneens aan de voorzijde is gelegen.
Tot het plafond betegelde, gemoderniseerde badkamer met wandcloset, inloopdouche met regendouche en twee persoons wastafelmeubel.

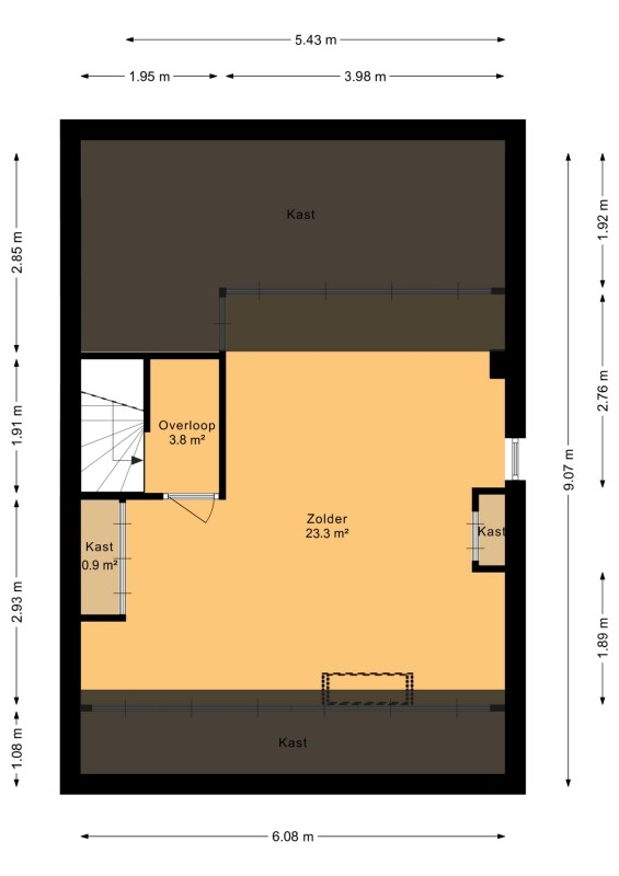
2e Verdieping:
Middels een (vernieuwde) vaste trap te bereiken zolderverdieping van ca. 23.3 m² met velux dakraam, de mogelijkheid bestaat om 2 slaapkamers te creëren. Tevens bevindt zich op de tweede verdieping de opstelling van de cv-combiketel.

Tuin:
De achtertuin is op het oosten gesitueerd en is voorzien van een terras, sierbestrating, gazon en diverse plantenborders met volwassen beplanting.
De garage is toegankelijk vanuit de bijkeuken als vanuit de tuin en beschikt over elektra en openslaande deuren/ loopdeur. De garage geeft toegang tot de carport en de oprit welke geschikt is voor meerdere auto’s.

Ligging:
Oosterhout is een gezellige en sfeervolle stad met een prachtig historisch stadshart de "Markt", de "Heuvel" en een geweldig stadspark. Aan de rand van het stadspark liggen de zogenaamde "Slotjes” (voormalige kasteeltjes).
De ligging is op een kindvriendelijke locatie met diverse basisscholen, sportaccommodaties en winkelcentrum Arkendonk in de omgeving.
Daarnaast zijn ook de uitvalswegen snel en eenvoudig bereikbaar. Oosterhout heeft een gunstige ligging ten opzichte van de A27 (Utrecht-Breda), de A58 (Bergen op Zoom – Eindhoven) en de A59 (Zonzeel – ‘s-Hertogenbosch). Hartje Breda is binnen een kwartier met de auto of met de bus te bereiken.

Deze informatie is geheel vrijblijvend, uitsluitend voor geadresseerde bestemd en niet bedoeld als aanbod. Ten aanzien van de juistheid van de vermelde informatie kan door makelaarskantoor Biemans B.V. geen aansprakelijkheid worden aanvaard, noch kan aan de vermelde informatie enig recht worden ontleend.
 
+ lees de volledige omschrijving

Overdracht

Vraagprijs
€ 599.000 kosten koper
Status
Verkocht

Bouw

Soort woonhuis
woning, eengezinswoning
Bouwjaar
1974
Soort bouw
bestaande bouw
Isolatie
dakisolatie, muurisolatie, vloerisolatie

Indeling

Woonoppervlakte
162 m2
Inhoud
672 m3
Aantal kamers
5
Perceeloppervlakte
267 m2
Aantal woonlagen
3

Energie

Warm water
c.v.-ketel

Parkeergelegenheid

Garage
aangebouwd steen, carport
 
Tijmhof 81
4907 BD, OOSTERHOUT
Verkocht
€ 599.000 k.k.
Bouwjaar
1974
Inhoud
672 m3
Woonopp.
162 m2
Perceelopp.
267 m2
Kamers
5 kamers
 
 

Meer informatie over Tijmhof 81, OOSTERHOUT