In Oosterhout-Zuid gelegen middenwoning met voor- en achtertuin, stenen berging en achterom. De ligging in Oosterhout-Zuid is centraal nabij de uitvalswegen, busverbinding en de bossen.

De ligging is bijzonder centraal op loopafstand van winkelcentrum "Zuiderhout", basis- en voortgezet onderwijs, sportaccommodaties waaronder voetbal, hockey, tennis, atletiek en zwembad "de Warande".

Kenmerken:

- De woning is voorzien van energielabel A;
- Het betreft een uiterst energiezuinige woning v.v. recent vernieuwde kozijnen en gevelisolatie/ bekleding;
- Ruime woning met achtertuin v.v. berging en 4 slaapkamers;
- Indien er meerdere kandidaten zijn, zal het woonhuis middels een loting verzorgd door de notaris, verkocht worden. De vraagprijs zal als transactieprijs aangehouden worden. Huurders die een sociale huurwoning van Thuisvester in de

gemeente Oosterhout achterlaten krijgen voorrang;
- Op loopafstand van winkelcentrum zuiderhout, met uitstekende bereikbaarheid van uitvalswegen;
- Het betreft een voormalige huurwoning van Thuisvester, hierdoor bent u gebonden aan een projectnotaris;
- Verkoopvoorwaarden zijn van toepassing, in de koopakte zullen o.a. een zelfbewoningsplicht, anti- speculatiebeding,

ouderdomsclausule en niet zelfbewoningsclausule worden opgenomen.

Begane Grond:

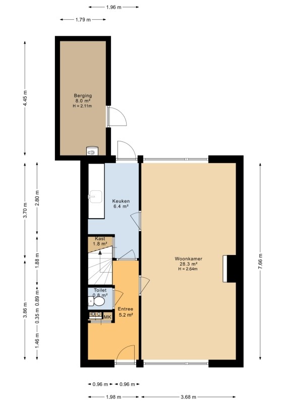
Entree/hal met tegelvloer, meterkast, toiletruimte en trapopgang welke toegang geeft tot de eerste verdieping.

Woon-/eetkamer afmeting circa 7.82 x 3.68 m, type doorzon met nette laminaat vloerafwerking en grote raampartijen aan de voor- en achterzijde.
Besloten keukenruimte afm. ca. 6.70m² met tegelvloer en deur welkte toegang geeft tot de achtertuin. Het keukenblok is in een rechte opstelling geplaatst en beschikt over een spoelbak en diverse boven- en onderkastjes.

Tuin:

Diepe keurig onderhouden voor en achtertuin. De achtertuin welke is gelegen op het zuid/ oosten. beschikt over borders met beplanting en een berging welke is voorzien van elektra en hier bevindt zich de opstelplaats van de cv-ketel.

De achtertuin is middels een achterom bereikbaar.

Eerste Verdieping:

De overloop biedt toegang tot de vier slaapkamers en tot de badkamer. De badkamer is tot het plafond betegeld en voorzien van een wastafel en een inloopdouche. De eerste verdieping is vrijwel geheel voorzien van een Laminaat.

Slaapkamer 1: ca. 9.9 m² met laminaatvloer, vaste kast en grote raampartij.
Slaapkamer 2: ca. 10.5 m² met laminaatvloer, vaste kast en grote raampartij.
Slaapkamer 3: ca. 5.2 m² met laminaatvloer.
Slaapkamer 4: ca. 5.5 m² met laminaatvloer.

Ligging:

Oosterhout is een gezellige en sfeervolle stad met een prachtig historisch stadshart de "Markt", de "Heuvel" en de geweldige stadsparken.

De woning is nabij het winkelcentrum van Zuiderhout gelegen, op loopafstand van scholen, parken en sportfaciliteiten.
Daarnaast zijn ook de uitvalswegen snel en eenvoudig bereikbaar. Oosterhout heeft een gunstige ligging ten opzichte van de A27 (Utrecht-Breda), de A58 (Bergen op Zoom – Eindhoven) en de A59 (Zonzeel – ‘s-Hertogenbosch).
Hartje Breda is binnen een kwartier met de auto of met de bus te bereiken.
 
+ lees de volledige omschrijving

Overdracht

Vraagprijs
€ 335.000 kosten koper
Status
Verkocht onder voorbehoud

Bouw

Soort woonhuis
woning, eengezinswoning
Bouwjaar
1966
Soort bouw
bestaande bouw
Isolatie
volledig geïsoleerd

Indeling

Woonoppervlakte
89 m2
Inhoud
328 m3
Aantal kamers
5
Perceeloppervlakte
143 m2
Aantal woonlagen
2

Energie

Warm water
c.v.-ketel

Parkeergelegenheid

Garage
geen garage
 
Van Maerlantstraat 7
4904 EC, OOSTERHOUT
Verkocht onder voorbehoud
€ 335.000 k.k.
Bouwjaar
1966
Inhoud
328 m3
Woonopp.
89 m2
Perceelopp.
143 m2
Kamers
5 kamers
 
 

Meer informatie over Van Maerlantstraat 7, OOSTERHOUT