Midden in het centrum van Oosterhout, doch rustig gelegen, ruime middenwoning met diepe tuin op het zuid-westen, stenen berging en achterom.
Het betreft een zeer kindvriendelijke locatie met voldoende parkeergelegenheid (middels parkeervergunning) en vrij uitzicht. De woning is tevens zeer gunstig gesitueerd, op loopafstand van het winkelcentrum "Arendshof" alsmede van de gezellige "Heuvel" en "Markt" met restaurants en uitgaansmogelijkheden

Bijzonderheden:
- Leuke woning in het centrum van Oosterhout gelegen.
- Tuin op het westen met berging en achterom.
- De woning is voorzien van dubbele beglazing.
- Winkelcentrum "Arendshof" is op enkele minuten lopen van de woning gelegen.
- Eveneens op loop/fietsafstand van basisscholen.
- Parkeervergunning door koper zelf aan te vragen bij de Gemeente Oosterhout, kosten circa € 60,-- per jaar voor één auto.
- Keuze notaris is voorbehouden aan de verkopende partij, zijnde VAD Notarissen N.V. te Rotterdam.

De indeling is als volgt:
Begane grond:
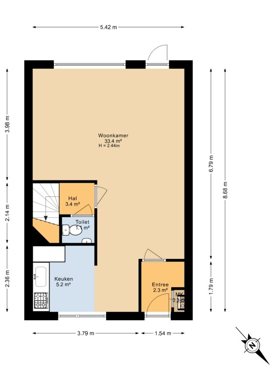
Entree met meterkast en plaats voor een garderobe. De keuken is aan de voorzijde van het pand gelegen, met een afmeting van circa 5.2 m2, en is uitgerust met een eenvoudig keukenblok met wasemkap. De op de tuin gerichte woon/eetkamer, afmeting circa 33 m2 en is royaal van opzet en voorzien van een loopdeur naar de tuin.
Via een tussenportaal komt u bij het gedeeltelijk betegeld toilet met fontein en vanuit daar heeft u de trapopgang naar de eerste verdieping.

Eerste Verdieping:
Overloop welke toegang geeft tot de twee slaapkamers, alsmede de badkamer en vaste trapopgang naar de tweede verdieping.
Slaapkamer achterzijde afmeting circa 3.14 x 5.42 m. met dakkapel.
Slaapkamer voorzijde afmeting circa 4.62 x 3.17 m.
De eenvoudige badkamer afmeting circa 2.43 x 2.19 m. beschikt over een douche, vaste wastafel, toilet en aansluiting ten behoeve van de wasautomaat.

Tweede Verdieping:
Voorzolder met unit mechanische afzuiging, opstelplaats combi-ketel en bergruimte. Volwaardige slaapkamer afmeting circa 10 m2 en voorzien van een tuimelraam.

Tuin en Berging:
Leuke tuin op het westen gelegen met terras. Stenen berging voorzien van elektriciteit. Voorts achterom.

Ligging:
De ligging is op loopafstand van het gezellige centrum met zijn winkelstraten en het overdekt winkelcentrum "Arendshof". Voorts vele restaurants op- en rondom "de Markt" en "de Heuvel" en uitgaansgelegenheden. Voor de rust kunt u vertoeven in de gezellige stadsparken welke eveneens op loopafstand bereikbaar zijn.
Daarnaast zijn ook de uitvalswegen snel en eenvoudig bereikbaar. Oosterhout heeft een gunstige ligging ten opzichte van de A27 (Utrecht-Breda), de A58 (Bergen op Zoom – Eindhoven) en de A59 (Zonzeel – ‘s-Hertogenbosch).
Hartje Breda is binnen een kwartier met de auto of met de bus te bereiken.

Deze informatie is geheel vrijblijvend, uitsluitend voor geadresseerde bestemd en niet bedoeld als aanbod. Ten aanzien van de juistheid van de vermelde informatie kan door makelaarskantoor Biemans B.V. geen aansprakelijkheid worden aanvaard, noch kan aan de vermelde informatie enig recht worden ontleend.
 
+ lees de volledige omschrijving

Overdracht

Vraagprijs
€ 399.500 kosten koper
Status
Verkocht

Bouw

Soort woonhuis
woning, eengezinswoning
Bouwjaar
1985
Soort bouw
bestaande bouw
Isolatie
dakisolatie, muurisolatie, vloerisolatie, dubbel glas

Indeling

Woonoppervlakte
107 m2
Inhoud
367 m3
Aantal kamers
4
Perceeloppervlakte
177 m2
Aantal woonlagen
3

Energie

Warm water
c.v.-ketel

Parkeergelegenheid

Garage
geen garage
 
Van Reesstraat 15
4901 LZ, OOSTERHOUT
Verkocht
€ 399.500 k.k.
Bouwjaar
1985
Inhoud
367 m3
Woonopp.
107 m2
Perceelopp.
177 m2
Kamers
4 kamers
 
 

Meer informatie over Van Reesstraat 15, OOSTERHOUT