Karakteristiek gebouwde jaren '30e twee-onder-één kapwoning gelegen op een riant perceel van 513m², fraai aangelegde tuin, multifunctionele ruimte (kantoor/speelkamer) opslagruimte, garage en dubbele oprit.

Kenmerken:
-In uitstekende staat van onderhoud verkerende karakteristieke jaren '30 woning;
-Dak gerenoveerd in 2023;
-Buiten schilderwerk 2025; Binnen schilderwerk 2023;
-17 zonnepanelen;
-Energielabel B ;
-De woning beschikt over een dubbele dakkapel aan de achterzijde;
-De woning beschikt in totaal over 3 ruime slaapkamers en een vergrootte badkamer;
-Verbouwd met hoogwaardige materialen;
-Garage uitgerust met elektrisch, op afstand bedienbare, segmentdeur;
-Dubbele oprit met ruime parkeergelegenheid;
-Verwarmde (d.m.v. elektrische haard) multifunctionele ruimte van 12.3m².;
-Opslagruimte/ hal van 54m² welke toegang geeft tot de riante garage van 24.1 m²;
-Achtertuin met veel privacy, toebedeeld met ochtend-, middag-, en avondzon;
-De woning is gesitueerd op de rand van het centrum met ruime mogelijkheden op het perceel;
-Oplevering in overleg.

Begane grond:
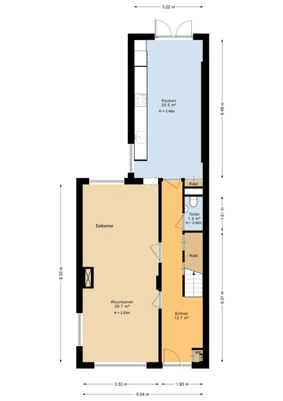
Ruime entree / hal met granito vloer, garderobe, meterkast, modern geheel betegeld toilet en trapopgang naar de verdieping. Vanuit de hal is er een toegang naar de woonkamer alsmede tot de in de aanbouw gelegen woonkeuken.
De sfeervolle woonkamer, type doorzon, heeft een oppervlakte van ca. 30 m² en beschikt o.a. over een open haard kanaal, gestuukte wanden en hoog plafond (2.83m!)
De fraaie woonkeuken beschikt over een moderne keukeninrichting in rechte opstelling en is voorzien van diverse inbouwapparatuur, te weten; inductiekookplaat, afzuigschouw, oven, magnetron, koelkast en vaatwasser.
Vanuit de keuken is middels de openslaande deuren de tuin te bereiken.

Eerste Verdieping:
Ruime overloop welke toegang geeft tot de 2-tal (slaap)kamers, de badkamer en tot de vaste trapopgang naar de tweede verdieping.
Slaapkamer 1, afm. ca. 11.3 m² welke aan de voorzijde is gelegen.
Slaapkamer 2, afm. ca. 10.9 m² welke eveneens aan de voorzijde is gelegen met dakkapel.
De moderne badkamer beschikt over een ruime inloopdouche, ligbad, een designradiator, hangcloset, wastafel met meubel, tv-toestel (blijft achter) veel (extra) kastruimte en in deze ruimtes bevinden zich de aansluitingen t.b.v. de wasmachine/ droger.

Tweede Verdieping:
De overloop geeft toegang tot de riante ouderslaapkamer, afm. ca. 22.2m² welke is voorzien van een grote dubbele dakkapel en een laminaatvloer.

Multifunctionele ruimte:
In de achtertuin is een losstaande opslag/hobbyruimte gerealiseerd welke thans in gebruik is als kantoor, opslagruimte. De ruime, lichte (werk)kamer, aan de voorzijde van de units, heeft een afmeting van ca. 12.3m² en beschikt over een wastafel. Voorts te bereiken opslag/hobbyruimte van ca. 54.1m² met eenvoudige kitchenette en twee dakvensters. Vanuit deze ruimte is de grote garage te bereiken van ca. 24.1 m². Voor de garage ligt een oprit welke geschikt is voor meerdere auto’s.

Tuin:
De heerlijke achtertuin biedt zeer veel privacy. De tuin is fraai aangelegd met verschillende terrassen in sierbestrating in zon/ schaduw, gazon, grote overkapping van ca 24m², borders met volwassen beplanting en beregeningsinstallatie.
De extra oprit aan de zijkant van het perceel is voorbereid op een carport.
Vanuit de tuin is de extra buitenberging bereikbaar.

Ligging:
Oosterhout is een gezellige en sfeervolle stad met een prachtig historisch stadshart de "Markt", de "Heuvel" en de geweldige stadsparken.
De woning is nabij het stadcentrum van Oosterhout gelegen, op een uitstekende locatie in de gewilde woonomgeving "Leijsenakkers", direct grenzend aan de alom bekende "Heilige Driehoek", een zeldzaam uniek en gaaf bewaard gebied met prachtige wandelpaden naar en langs mooie, oude abdijen. Binnen 5 minuten bereikt u vanuit de woning de A27 en A59.
 
+ lees de volledige omschrijving

Overdracht

Vraagprijs
€ 615.000 kosten koper
Status
Verkocht

Bouw

Soort woonhuis
woning, eengezinswoning
Bouwjaar
1935
Soort bouw
bestaande bouw
Isolatie
dakisolatie, dubbel glas

Indeling

Woonoppervlakte
121 m2
Inhoud
700 m3
Aantal kamers
4
Perceeloppervlakte
513 m2
Aantal woonlagen
3

Energie

Warm water
c.v.-ketel

Parkeergelegenheid

Garage
vrijstaand steen
 
Veerseweg 53
4901 ZD, OOSTERHOUT
Verkocht
€ 615.000 k.k.
Bouwjaar
1935
Inhoud
700 m3
Woonopp.
121 m2
Perceelopp.
513 m2
Kamers
4 kamers
 
 

Meer informatie over Veerseweg 53, OOSTERHOUT