Verdistraat 9 – Bijzonder nette en deels gemoderniseerde eengezinswoning

In de kindvriendelijke en groene Componistenbuurt gelegen gemoderniseerde middenwoning welke is voorzien van vijf slaapkamers (waarvan één walk-in closet), luxe badkamer en fraaie open keuken en een zonnige achtertuin op het zuidoosten.

Kenmerken:

- Gemoderniseerde middenwoning v.v. recent vernieuwde keuken, badkamer, stucwerk, vloeren, kozijnen (1e verdieping en opnieuw aangelegde achtertuin;
- Vijf volwaardige slaapkamers, waarvan één met walk-in closet en airco;
- Luxe open keuken met inbouwapparatuur;
- Nieuwe gevelbekleding (Keralit)
- Gemoderniseerde badkamer met ligbad, inloopdouche, wastafelmeubel en plafond v.v. inbouwspots;
- Zonnige achtertuin op het zuidoosten met achterom en stenen berging met elektra;
- Airco op de begane grond en ouderslaapkamer;
- Vaste trap naar de tweede verdieping met grote kamer, veel bergruimte en wasmachine- en drogeraansluiting.

Indeling:

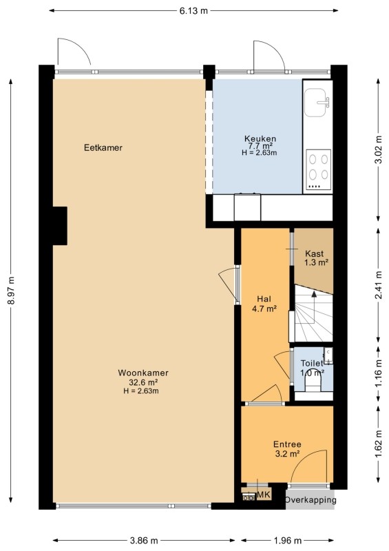
Begane grond:
Entree/ hal, garderobenis, meterkast en moderne toiletruimte v.v. hangcloset en fonteintje. Vanuit de hal bereik je de ruime woonkamer, die recent volledig is vernieuwd en voorzien is van een stijlvolle laminaatvloer en strak stucwerk. Aan de achterzijde zorgen grote raampartijen voor veel licht en uitzicht op de verzorgde tuin.
De open keuken ligt aan de achterzijde en is eveneens recent geplaatst. Deze moderne keuken is uitgerust met een inductiekookplaat, afzuiging, oven, vaatwasser, koel-/vriescombinatie en diverse opbergkasten. De open indeling zorgt voor een fijne verbinding tussen koken en wonen.

Eerste verdieping:
De overloop geeft toegang tot vier slaapkamers en de badkamer.
Slaapkamer I voorzijde (ouderkamer): ruim, voorzien van airconditioning en in open verbinding met de naastgelegen kamer (slaapkamer IIII), welke is ingericht als walk-in closet.
Slaapkamer II achterzijde: momenteel in gebruik als kantoorruimte.
Slaapkamer III achterzijde volwaardige slaapkamer met goed lichtinval.
De praktisch ingedeelde badkamer is recent volledig gemoderniseerd en beschikt over een ligbad, inloopdouche, wastafelmeubel en nistjes met inbouwspots.

Tweede verdieping:
Via een vaste trap bereik je de tweede verdieping. Deze verdieping is keurig afgewerkt en voorzien van een 2 dakramen, aansluiting voor de wasmachine/droger, de cv-opstelling en extra bergruimte. De luxe houten afwerking maakt van deze verdieping een volwaardige vijfde slaapkamer.

Tuin:
De voor- en achtertuin ligt op het zuid-oosten, is verzorgd aangelegd in 2018 en bestaat uit een combinatie van nette bestrating en kunstgras. Achterin bevindt zich een stenen berging met elektra en via de achterom is de woning ook vanaf de achterzijde bereikbaar.

Ligging:
De woning ligt in de geliefde Componistenbuurt, een rustige, groene en kindvriendelijke wijk. Op loopafstand vind je winkelcentrum Zuiderhout, scholen, sportverenigingen en parken. De bereikbaarheid is uitstekend door de nabijheid van de uitvalswegen A27, A58 en A59. Het centrum van Oosterhout bereik je in tien fietsminuten en hartje Breda in slechts een kwartier.
 
+ lees de volledige omschrijving

Overdracht

Vraagprijs
€ 415.000 kosten koper
Status
Verkocht

Bouw

Soort woonhuis
woning, eengezinswoning
Bouwjaar
1969
Soort bouw
bestaande bouw
Isolatie
gedeeltelijk dubbel glas

Indeling

Woonoppervlakte
130 m2
Inhoud
449 m3
Aantal kamers
6
Perceeloppervlakte
162 m2
Aantal woonlagen
3

Energie

Verwarming
c.v.-ketel
Warm water
c.v.-ketel

Parkeergelegenheid

Garage
geen garage
 
Verdistraat 9
4904 MC, OOSTERHOUT
Verkocht
€ 415.000 k.k.
Bouwjaar
1969
Inhoud
449 m3
Woonopp.
130 m2
Perceelopp.
162 m2
Kamers
6 kamers
 
 

Meer informatie over Verdistraat 9, OOSTERHOUT