Aan de rand van de "Vrachelse heide" gelegen, riante (8 meter breed) hoekwoning met inpandig te bereiken garage, oprit, tuin, 4 slaapkamers en middels vaste trap te bereiken zolderverdieping. De woning is goed onderhouden (juni 2025 geschilderd) en voorzien van houten kozijnen en rolluiken op de eerste verdieping.

Kenmerken:

- Energielabel B.
- Zonnepanelen t.b.v. warmwatervoorziening.
- De woning is voorzien van rolluiken op de eerste verdieping.
- De woning beschikt over een inpandig te bereiken garage.
- Er is voldoende parkeergelegenheid, zowel openbaar als op eigen terrein.
- Volop privacy biedende tuin met zijuitgang.
- De woning is gelegen in een rustige straat met vrij uitzicht in de woonwijk "Vrachelen I", nabij scholen, bosgebied en

uitvalswegen.

Begane Grond:

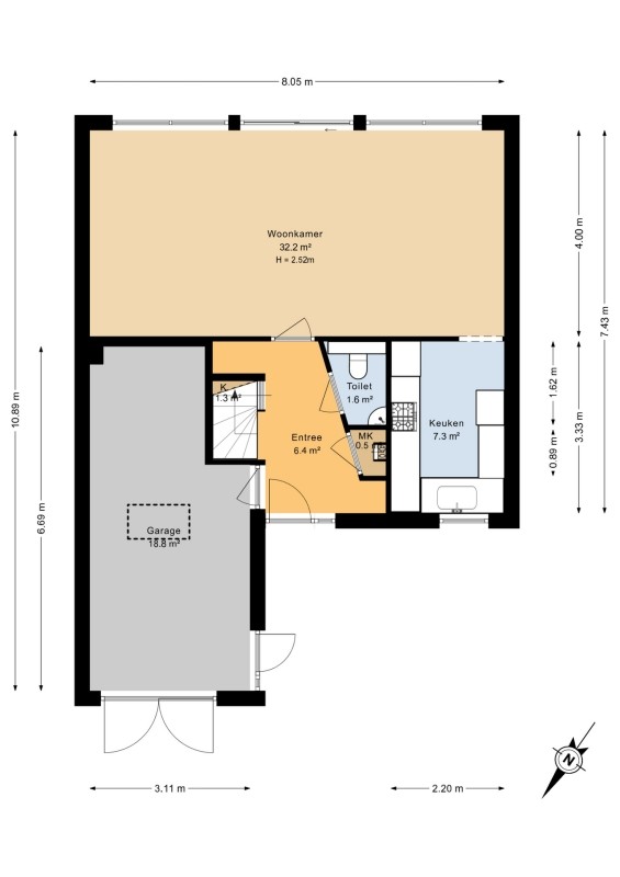
Entree/ hal met trapopgang naar de eerste verdieping, meterkast, betegelde toiletruimte v.v. hangcloset en fonteintje. Vanuit de hal is tevens de ruime inpandig garage bereikbaar.

Riante tuingerichte woon/eetkamer afm. ca. 4.00 x 8.05m met plavuizenvloer en grote schuifpui naar de tuin/terras. Deze woonkamer biedt voldoende ruimte voor het plaatsen van een gezellige zithoek en een grote eetkamertafel.
Aan de voorzijde gelegen open keuken welke eveneens is voorzien van een plavuizenvloer en een witte U-keukenopstelling met diverse boven- en onderkasten. Voorts diverse inbouwapparatuur, te weten; gaskookplaat, afzuigkap, vaatwasser, koelkast en vriezer.

Tuin:

De omsloten achtertuin is gelegen op het zuiden met sierbestrating en kunststof berging voorzien van electra. Achter tegen de woning bevindt zich een groot zonnescherm.

Aan de voorzijde van de woning is de garage bereikbaar. Deze is zowel van binnenuit als buiten bereikbaar en voorzien van garagedeuren, verwarming en aansluitingen t.b.v. de wasapparatuur. Tevens is de garage voorzien van een praktische bergzolder.

Eerste Verdieping:

Overloop met laminaatvloer en toegang tot de 4 slaapkamers en de badkamer.

Deze tweede verdieping is te bereiken via vaste trap in de slaapkamer en heeft een overloop met opstelplaats t.b.v. cv-ketel en geeft toegang tot de zolderruimte met 2 Velux dakramen.

Slaapkamer 1, gelegen aan de voorzijde, afm. ca. 15,2², met laminaatvloer en vaste kast.
Slaapkamer 2, gelegen aan de achterzijde, afm. ca.9,7 m², met laminaatvloer.
Slaapkamer 3, gelegen aan de achterzijde, afm. ca. 9,2 m², met laminaatvloer.
Slaapkamer 4, eveneens gelegen aan de achterzijde, afm. ca.7 m², met laminaatvloer.

De gemoderniseerde badkamer, afm. ca. 3.25 x 2.35 m., uitgerust met inloopdouche, dubbele wastafel met meubel en spiegelkast, hangend toilet, designradiator en kunststof Velux raam.

Ligging:

De ligging is op loop- en/of fietsafstand van het gezellige centrum met zijn winkels, vele restaurants op- en rondom "de Heuvel" en uitgaansgelegenheden. Basisschool "de Pionier" is tegenover het pand gelegen. Op loopafstand is de "Vrachelse Heide" aanwezig waar u kunt genieten van een mooi bosgebied zowel om te wandelen als om te mountainbiken.

Daarnaast zijn ook de uitvalswegen snel en eenvoudig bereikbaar. Oosterhout heeft een gunstige ligging ten opzichte van de A27 (Utrecht-Breda), de A58 (Bergen op Zoom – Eindhoven) en de A59 (Zonzeel – ‘s-Hertogenbosch).
Hartje Breda is binnen een kwartier met de auto of met de bus te bereiken.
 
+ lees de volledige omschrijving

Overdracht

Vraagprijs
€ 525.000 kosten koper
Status
Beschikbaar

Bouw

Soort woonhuis
woning, eengezinswoning
Bouwjaar
1994
Soort bouw
bestaande bouw
Isolatie
volledig geïsoleerd

Indeling

Woonoppervlakte
125 m2
Inhoud
529 m3
Aantal kamers
6
Perceeloppervlakte
209 m2
Aantal woonlagen
3

Energie

Verwarming
c.v.-ketel

Parkeergelegenheid

Garage
inpandig
 
Zeislaan 8
4904 VD, OOSTERHOUT
€ 525.000 k.k.
Bouwjaar
1994
Inhoud
529 m3
Woonopp.
125 m2
Perceelopp.
209 m2
Kamers
6 kamers
 
 

Meer informatie over Zeislaan 8, OOSTERHOUT